Продается однокомнатная квартира
Мамина-сибиряка 36Б, район (Центр мкр.)
11.12.2025




























Стоимость
10 200 000 ₽
300 000 рублей за м2
300 000 рублей за м2
Количество комнат
1 комн
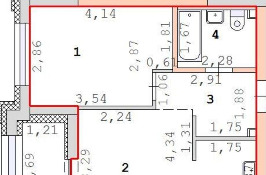
Общая площадь
34 м²
Этаж
27 из 31
Несуществующий объект, неправильная информация? - обязательно сообщите.
Дополнительная информация:
продаётся видовая 1 комнатная квартира с функционалом 2х комнатной, на 27 этаже, откуда открывается шикарный вид на город и городской пруд. функциональная планировка просторный холл с нишей под встроенный шкаф, кухнягостиная, изолированная спальня, совмещённый санузел, лоджия квартира расположена в жилом квартале екатерининский парк, который расположен в центре города екатеринбурга на пересечении улиц азина свердлова маминасибиряка шевченко, уникальный район с уже сложившийся инфраструктурой, школы, детские сады, храмы, театр юного зрителя, дом музыки, государственная академическая филармония, камерный театр, литературный квартал, ккт, космос, дивс и всё находится на расстоянии вытянутой руки .дом сдан ключи на сделке без залогов и обремененийотделка под ключ обои под покраску, натяжной потолок, ламинат, сан техника унитаз и раковина, межкомнатные двери, радиаторы с терморегуляторами и горизонтальной разводкой. установлены телеметрические счётчики на свет, тепло и воду, электроэнергию двухтарифные. дизайнерские холлы, которые создадут атмосферу тепла и уюта с первого момента, а панорамные входные группы без ступеней обеспечат комфорт и уют. колясочные, на первом этаже предусмотрено отдельное помещение для хранения колясок и спортивного инвентаря.закрытая территория с охраной, двор без машин, освещение всей территории, круглосуточное видеонаблюдение обеспечивает безопасность жителям жк.жилые кварталы екатерининский парк представляют пример современного европейского стиля, будут двумя пешеходными бульварами и одним проспектом. идеальный жк для комфортной жизни с транспортной доступностью и развитой инфраструктурой.
продаётся видовая 1 комнатная квартира с функционалом 2х комнатной, на 27 этаже, откуда открывается шикарный вид на город и городской пруд. функциональная планировка просторный холл с нишей под встроенный шкаф, кухнягостиная, изолированная спальня, совмещённый санузел, лоджия квартира расположена в жилом квартале екатерининский парк, который расположен в центре города екатеринбурга на пересечении улиц азина свердлова маминасибиряка шевченко, уникальный район с уже сложившийся инфраструктурой, школы, детские сады, храмы, театр юного зрителя, дом музыки, государственная академическая филармония, камерный театр, литературный квартал, ккт, космос, дивс и всё находится на расстоянии вытянутой руки .дом сдан ключи на сделке без залогов и обремененийотделка под ключ обои под покраску, натяжной потолок, ламинат, сан техника унитаз и раковина, межкомнатные двери, радиаторы с терморегуляторами и горизонтальной разводкой. установлены телеметрические счётчики на свет, тепло и воду, электроэнергию двухтарифные. дизайнерские холлы, которые создадут атмосферу тепла и уюта с первого момента, а панорамные входные группы без ступеней обеспечат комфорт и уют. колясочные, на первом этаже предусмотрено отдельное помещение для хранения колясок и спортивного инвентаря.закрытая территория с охраной, двор без машин, освещение всей территории, круглосуточное видеонаблюдение обеспечивает безопасность жителям жк.жилые кварталы екатерининский парк представляют пример современного европейского стиля, будут двумя пешеходными бульварами и одним проспектом. идеальный жк для комфортной жизни с транспортной доступностью и развитой инфраструктурой.
Похожие однокомнатные квартиры в районе





