Продается двухкомнатная квартира
Московская 194, район Ленинский (Юго-Западный мкр.)
21.01.2026



















Стоимость
14 600 000 ₽
214 705 рублей за м2
214 705 рублей за м2
Количество комнат
2 комн
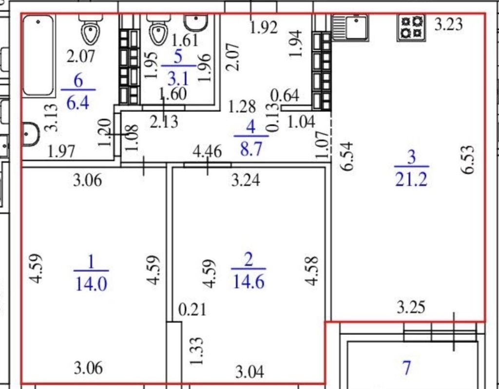
Общая площадь
68 м²
Этаж
28 из 33
Несуществующий объект, неправильная информация? - обязательно сообщите.
Дополнительная информация:
продается современная квартира с дизайнерским ремонтом, расположенная в новом монолитном доме 2019 года постройки. общая площадь квартиры составляет 68 кв. м, из которых 45 кв. м жилая площадь, а 20 кв. м просторная кухня, где можно с комфортом собираться всей семьей. квартира оборудована современной техникой и дизайнерской мебелью, при продаже все остается в квартире. теплые полы.квартира находится на 28 этаже 33этажного здания, предлагая великолепные виды на город. высокие потолки 2.7 метра добавляют ощущения простора.квартира имеет две комнаты и два отдельных санузла, что обеспечит удобство для семьи любого состава. дизайнерский ремонт выполнен с использованием качественных материалов, что подчеркивает стиль и уют интерьера. в квартире есть балкон, окна выходят на улицу, что обеспечивает хорошую освещенность и свежий воздух. для удобства проживания в доме предусмотрены два пассажирских и два грузовых лифта, пандус и мусоропровод.дом оснащен подземной парковкой, поэтому вы всегда найдете место для своего автомобиля. в шаговой доступности расположены школы, детские сады, клиники и магазины все, что необходимо для комфортной жизни. до метро чкаловская можно дойти пешком за 19 минут, что позволяет с легкостью добраться до центра города. в собственности имеется теплый подземный паркинг, возможно приобрести вместе с квартирой и пользоваться не выходя из дома сразу в свой автомобиль, особенно актуально особенно в холодное время. условия сделки прозрачные, квартира продается с возможностью оформления ипотеки. документы готовы к сделке, обременений нет. прямая продажа от собственника, что исключает дополнительные комиссии.приглашаем вас на просмотр этой великолепной квартиры. запишитесь на удобное для вас время, чтобы оценить все преимущества лично.
продается современная квартира с дизайнерским ремонтом, расположенная в новом монолитном доме 2019 года постройки. общая площадь квартиры составляет 68 кв. м, из которых 45 кв. м жилая площадь, а 20 кв. м просторная кухня, где можно с комфортом собираться всей семьей. квартира оборудована современной техникой и дизайнерской мебелью, при продаже все остается в квартире. теплые полы.квартира находится на 28 этаже 33этажного здания, предлагая великолепные виды на город. высокие потолки 2.7 метра добавляют ощущения простора.квартира имеет две комнаты и два отдельных санузла, что обеспечит удобство для семьи любого состава. дизайнерский ремонт выполнен с использованием качественных материалов, что подчеркивает стиль и уют интерьера. в квартире есть балкон, окна выходят на улицу, что обеспечивает хорошую освещенность и свежий воздух. для удобства проживания в доме предусмотрены два пассажирских и два грузовых лифта, пандус и мусоропровод.дом оснащен подземной парковкой, поэтому вы всегда найдете место для своего автомобиля. в шаговой доступности расположены школы, детские сады, клиники и магазины все, что необходимо для комфортной жизни. до метро чкаловская можно дойти пешком за 19 минут, что позволяет с легкостью добраться до центра города. в собственности имеется теплый подземный паркинг, возможно приобрести вместе с квартирой и пользоваться не выходя из дома сразу в свой автомобиль, особенно актуально особенно в холодное время. условия сделки прозрачные, квартира продается с возможностью оформления ипотеки. документы готовы к сделке, обременений нет. прямая продажа от собственника, что исключает дополнительные комиссии.приглашаем вас на просмотр этой великолепной квартиры. запишитесь на удобное для вас время, чтобы оценить все преимущества лично.
Похожие двухкомнатные квартиры в районе Ленинский





