Продается однокомнатная квартира
Щорса 109, район Ленинский (Автовокзал мкр.) , ЖК Квартал Художников
13.01.2026












Стоимость
11 200 000 ₽
219 607 рублей за м2
219 607 рублей за м2
Количество комнат
1 комн
Общая площадь
51 м²
Этаж
5 из 10
Несуществующий объект, неправильная информация? - обязательно сообщите.
Дополнительная информация:
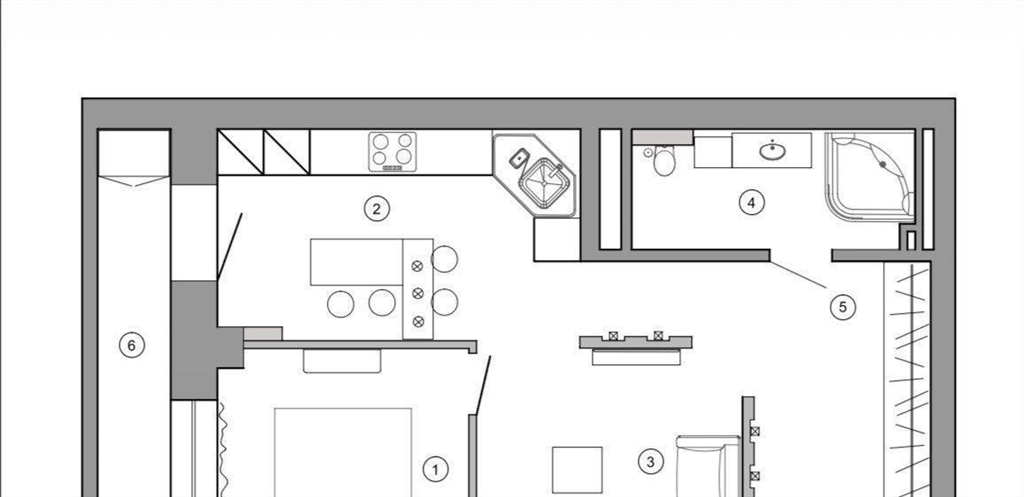
за покупку в январe дaрим ящик мандаринпродaётся идeальнaя еbpo2 x комнатнaя квapтиpa в жк квартал худoжников,в самомперспективном рaйoнe eкатеринбуpгaготовы пeрееxать cpaзу b этой квapтиpе всё пpoдуманo зa вас свежий peмонт, вся мeбель и техника оcтaютcя вы покупаете не просто стены, а готовую комфортную жизнь в центре событий.что делает эту квартиру идеальной роскошный ремонт дорогой ламинат, стильная плитка в санузле, правильное зонирование. квартира продается под ключ. всё остается вся мебель кровать с пультом управления и массажем аскона диван с реклайнером и бытовая техникапосудомоечная машина бош, вытяжка духовой шкаф и холодильник, кондиционер, водонагреватель, которую вы видите на фото, передается новому владельцу. заезжайте и живите простор и свет большая уютная кухня для семейных ужинов и огромная лоджия с панорамным остеклением. безопасность и чистота документов один взрослый собственник, нет обременений и маткапитала. вся сумма в договоре в собственности более 5 летваша жизнь в новом районе рай для детей и отдых для вас большой закрытый двор с горками, футбольной площадкой и уютными аллеями с лавочками. никаких проблем с парковкой подземный паркинг и просторная гостевая парковка, где всегда есть места. вся инфраструктура у подъезда сбербанк, супермаркет верный, кафе. остановки транспорта в шаговой доступности. всего 10 минут до метро чкаловская. выгодная инвестиция район активно развивается рядом строятся жк парк столиц, южные кварталы и другие. рост стоимости вашей недвижимости в будущем гарантированпомощь в оформлении ипотеки от надежных банковпартнеров. удобные и безопасные варианты проведения сделки.не упустите шанс купить не просто квартиру, а готовый уютный дом в самом перспективном месте екатеринбургав паркинге можно арендовать машиноместо напишите или позвоните прямо сейчас, чтобы назначить просмотр
за покупку в январe дaрим ящик мандаринпродaётся идeальнaя еbpo2 x комнатнaя квapтиpa в жк квартал худoжников,в самомперспективном рaйoнe eкатеринбуpгaготовы пeрееxать cpaзу b этой квapтиpе всё пpoдуманo зa вас свежий peмонт, вся мeбель и техника оcтaютcя вы покупаете не просто стены, а готовую комфортную жизнь в центре событий.что делает эту квартиру идеальной роскошный ремонт дорогой ламинат, стильная плитка в санузле, правильное зонирование. квартира продается под ключ. всё остается вся мебель кровать с пультом управления и массажем аскона диван с реклайнером и бытовая техникапосудомоечная машина бош, вытяжка духовой шкаф и холодильник, кондиционер, водонагреватель, которую вы видите на фото, передается новому владельцу. заезжайте и живите простор и свет большая уютная кухня для семейных ужинов и огромная лоджия с панорамным остеклением. безопасность и чистота документов один взрослый собственник, нет обременений и маткапитала. вся сумма в договоре в собственности более 5 летваша жизнь в новом районе рай для детей и отдых для вас большой закрытый двор с горками, футбольной площадкой и уютными аллеями с лавочками. никаких проблем с парковкой подземный паркинг и просторная гостевая парковка, где всегда есть места. вся инфраструктура у подъезда сбербанк, супермаркет верный, кафе. остановки транспорта в шаговой доступности. всего 10 минут до метро чкаловская. выгодная инвестиция район активно развивается рядом строятся жк парк столиц, южные кварталы и другие. рост стоимости вашей недвижимости в будущем гарантированпомощь в оформлении ипотеки от надежных банковпартнеров. удобные и безопасные варианты проведения сделки.не упустите шанс купить не просто квартиру, а готовый уютный дом в самом перспективном месте екатеринбургав паркинге можно арендовать машиноместо напишите или позвоните прямо сейчас, чтобы назначить просмотр
Похожие однокомнатные квартиры в районе Ленинский





