Продается двухкомнатная квартира
Софьи Перовской 103, район Железнодорожный (Новая Сортировка мкр.)
13.01.2026






















Стоимость
4 190 000 ₽
87 291 рублей за м2
87 291 рублей за м2
Количество комнат
2 комн
Общая площадь
48 м²
Этаж
1 из 9
Несуществующий объект, неправильная информация? - обязательно сообщите.
Дополнительная информация:
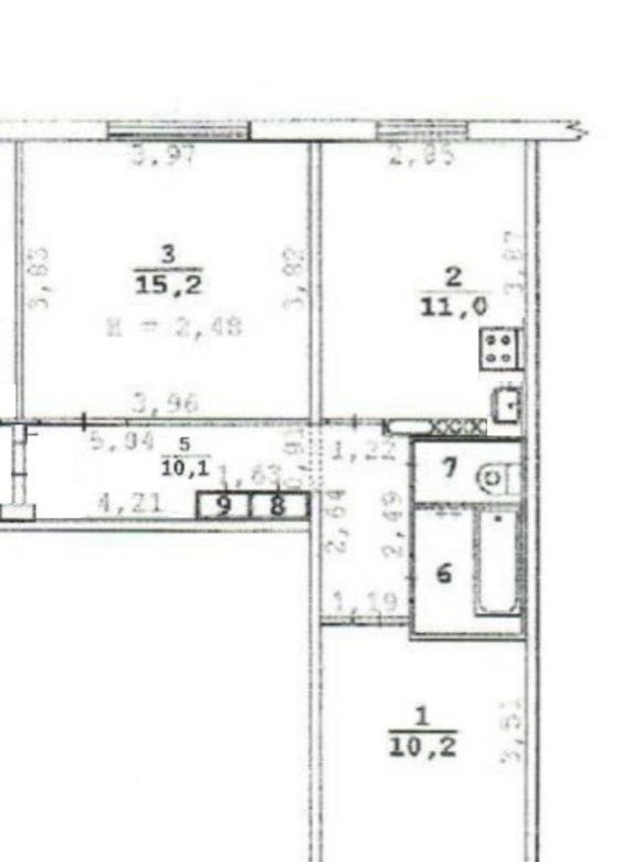
продам отличную, теплую, светлую 2 комн. квартиру 48.6 кв.м. в доме 1978 года постройки. квартира расположена на 1 этаже, но при этом имеется застеклённый балкон. окна достаточно высоко, поэтому никто посторонний в них не заглянет. уникальная планировка с большой 10и метровой квадратной кухней, в которой вы с легкостью разместитесь всей семьей. комнаты правильной формы, достаточно просторные 15.2 и 10.2 метров. в квартире установлены пластиковые окна и сейф дверь. установлены счетчики на воду и электричество. соседи приличные спокойные люди. квартира расположена вдали от шумных дорог. окна выходят во двор, на детскую площадку и детский сад.квартира под ваш будущий ремонт, так как вам нравится. в шаговой доступности несколько детских садов, школы, магазины, аптеки, отделение банка, парк таганская слобода. хорошая транспортная доступность.один взрослый собственник. обременений нет, несовершеннолетних собственников нет. детских долей нет, мат капиталов не вложено.рассматриваем все варианты приобретения ипотека, материнский капитал, военная ипотека. помогу получить ипотеку под данный объект. приходите на просмотр, вам понравится.id объекта в нашей базе 9492
продам отличную, теплую, светлую 2 комн. квартиру 48.6 кв.м. в доме 1978 года постройки. квартира расположена на 1 этаже, но при этом имеется застеклённый балкон. окна достаточно высоко, поэтому никто посторонний в них не заглянет. уникальная планировка с большой 10и метровой квадратной кухней, в которой вы с легкостью разместитесь всей семьей. комнаты правильной формы, достаточно просторные 15.2 и 10.2 метров. в квартире установлены пластиковые окна и сейф дверь. установлены счетчики на воду и электричество. соседи приличные спокойные люди. квартира расположена вдали от шумных дорог. окна выходят во двор, на детскую площадку и детский сад.квартира под ваш будущий ремонт, так как вам нравится. в шаговой доступности несколько детских садов, школы, магазины, аптеки, отделение банка, парк таганская слобода. хорошая транспортная доступность.один взрослый собственник. обременений нет, несовершеннолетних собственников нет. детских долей нет, мат капиталов не вложено.рассматриваем все варианты приобретения ипотека, материнский капитал, военная ипотека. помогу получить ипотеку под данный объект. приходите на просмотр, вам понравится.id объекта в нашей базе 9492
Похожие двухкомнатные квартиры в районе Железнодорожный





