Продается двухкомнатная квартира
бул. Строителей 73А, район Ленинский
30.11.2025


















Стоимость
4 550 000 ₽
96 808 рублей за м2
96 808 рублей за м2
Количество комнат
2 комн
Общая площадь
47 м²
Этаж
4 из 4
Несуществующий объект, неправильная информация? - обязательно сообщите.
Дополнительная информация:
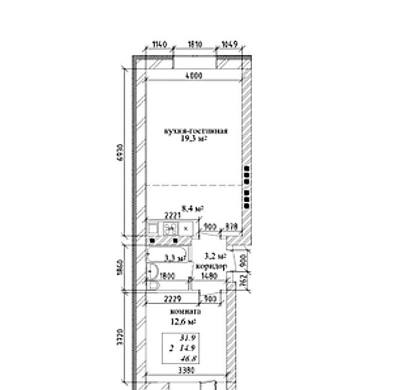
продается 2 комнатная квартира г. кемерово, ленинский район, бр строителей, д. 73а, жк подсолнухи.дом кирпичный, 2023 г. постройки, двор облагорожен.до остановки английский двор5 минут пешком.планировка квартиры на две стороны дома.плюсы данного жилого комплекса нет близко расположенных домов окна в окна, свободный обзор с двух сторон дома не нужно выстраивать перегородки в квартире наличие лоджии с панорамным остеклением.общая площадь квартиры с лоджией 50,5 кв.м. гостиная с кухонным блоком 28 кв.м.,спальная комната на детскую площадку 12,6 кв.м., верхний этаж больше света, отсутствие соседей сверху, высота потолка 3 м.ремонт по самоотделку.без обременений, быстрый выход на сделку.
продается 2 комнатная квартира г. кемерово, ленинский район, бр строителей, д. 73а, жк подсолнухи.дом кирпичный, 2023 г. постройки, двор облагорожен.до остановки английский двор5 минут пешком.планировка квартиры на две стороны дома.плюсы данного жилого комплекса нет близко расположенных домов окна в окна, свободный обзор с двух сторон дома не нужно выстраивать перегородки в квартире наличие лоджии с панорамным остеклением.общая площадь квартиры с лоджией 50,5 кв.м. гостиная с кухонным блоком 28 кв.м.,спальная комната на детскую площадку 12,6 кв.м., верхний этаж больше света, отсутствие соседей сверху, высота потолка 3 м.ремонт по самоотделку.без обременений, быстрый выход на сделку.
Похожие двухкомнатные квартиры в районе Ленинский





