Продается однокомнатная квартира
3-я Урожайная 34, район
21.01.2026














Стоимость
3 500 000 ₽
106 060 рублей за м2
106 060 рублей за м2
Количество комнат
1 комн
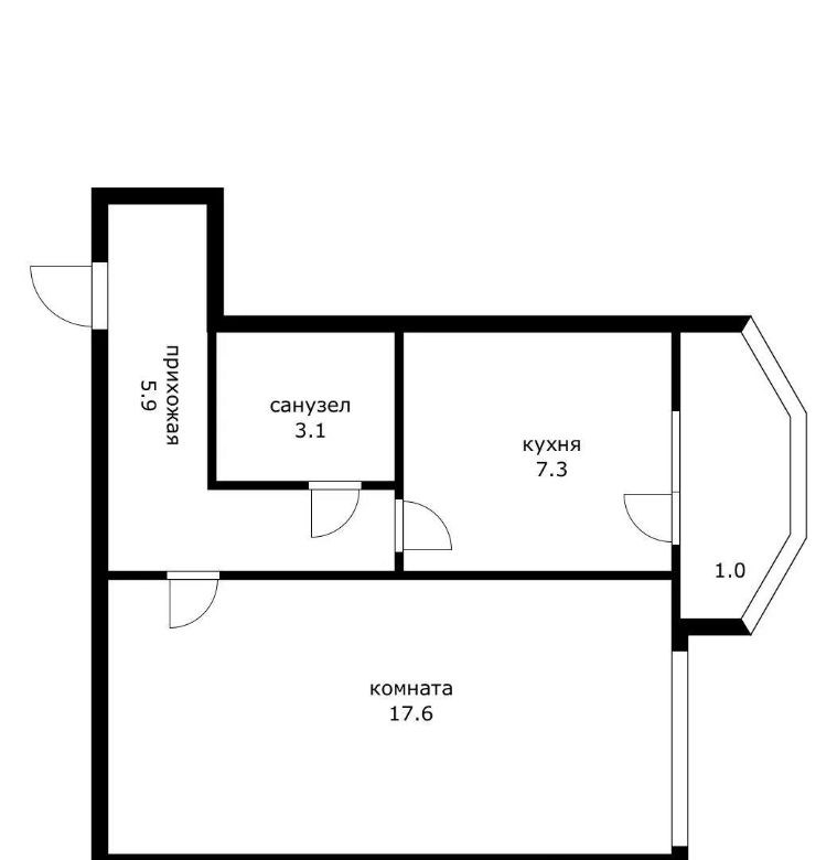
Общая площадь
33 м²
Этаж
2 из 3
Несуществующий объект, неправильная информация? - обязательно сообщите.
Дополнительная информация:
современный, кирпичный дом в развитом районе города.в пешей доступности вся необходимая инфраструктура, квартира с ремонтом и мебелью.центральные коммуникации и главная особенность низкие платежи по ку, за счет индивидуального газового котла в квартире. летом и зимой не больше 3000 выходит за все ку.удобный, 2 этаж и вид во двор из окна.документы готовы к сделке, звоните и записывайтесь на просмотр.отдельно оплачивается комиссия с покупателя.ко 1015789421
современный, кирпичный дом в развитом районе города.в пешей доступности вся необходимая инфраструктура, квартира с ремонтом и мебелью.центральные коммуникации и главная особенность низкие платежи по ку, за счет индивидуального газового котла в квартире. летом и зимой не больше 3000 выходит за все ку.удобный, 2 этаж и вид во двор из окна.документы готовы к сделке, звоните и записывайтесь на просмотр.отдельно оплачивается комиссия с покупателя.ко 1015789421
Похожие однокомнатные квартиры в районе





