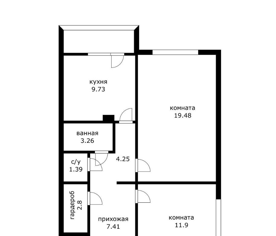
Продается двухкомнатная квартира
Атарбекова 5, район (Фестивальный мкр.)
02.12.2025
















Стоимость
7 800 000 ₽
130 000 рублей за м2
130 000 рублей за м2
Количество комнат
2 комн
Общая площадь
60 м²
Этаж
10 из 16
Несуществующий объект, неправильная информация? - обязательно сообщите.
Дополнительная информация:
продается уютная двухкомнатная квартира в лучшем районе краснодара.квартира большая, светлая, включает в себя две изолированные комнаты, просторную кухню и совмещенный санузел. в квартире выполнен качественный ремонт. вся мебель и техника остается, вложений квартира не требует, можно сразу заехать и жить. район с развитой инфраструктурой. в шаговой доступности находятся магазины, супермаркеты, аптеки, поликлиника, школа, детский сад, парк для прогулок. территория дома закрыта для посторонних, находится под видеонаблюдением, въезд через шлагбаум. тихие и дружелюбные соседи. удобная транспортная доступность. рядом с домом остановки общественного транспорта. дополнительно оплачивается комиссия покупателем.звоните
продается уютная двухкомнатная квартира в лучшем районе краснодара.квартира большая, светлая, включает в себя две изолированные комнаты, просторную кухню и совмещенный санузел. в квартире выполнен качественный ремонт. вся мебель и техника остается, вложений квартира не требует, можно сразу заехать и жить. район с развитой инфраструктурой. в шаговой доступности находятся магазины, супермаркеты, аптеки, поликлиника, школа, детский сад, парк для прогулок. территория дома закрыта для посторонних, находится под видеонаблюдением, въезд через шлагбаум. тихие и дружелюбные соседи. удобная транспортная доступность. рядом с домом остановки общественного транспорта. дополнительно оплачивается комиссия покупателем.звоните
Похожие двухкомнатные квартиры в районе





