Продается однокомнатная квартира
Циолковского 5, район
09.02.2026



Стоимость
5 000 000 ₽
138 888 рублей за м2
138 888 рублей за м2
Количество комнат
1 комн
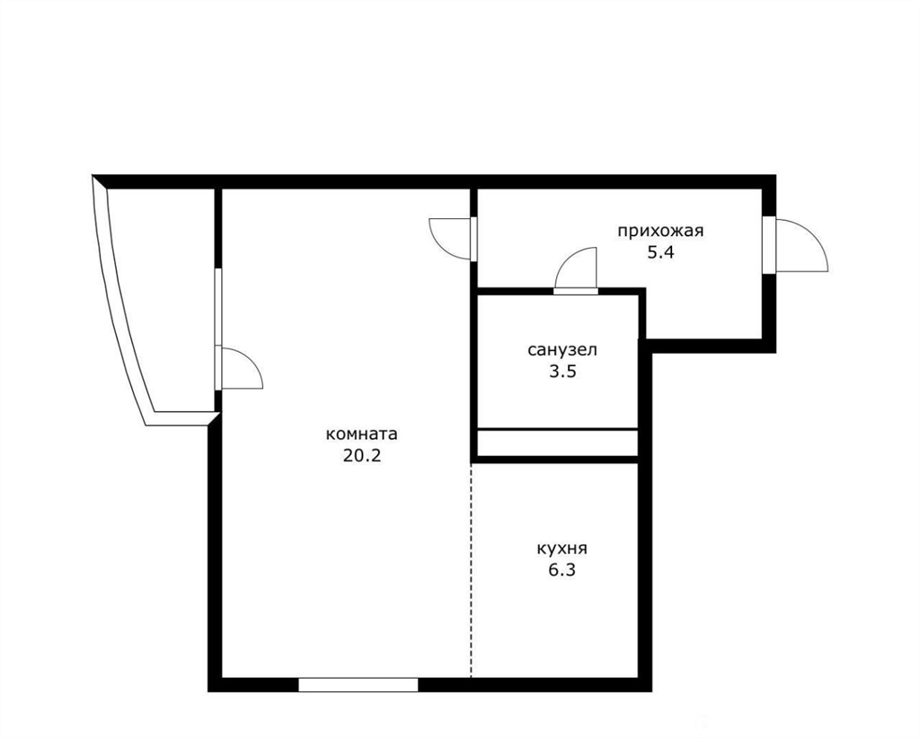
Общая площадь
36 м²
Этаж
10 из 13
Несуществующий объект, неправильная информация? - обязательно сообщите.
Дополнительная информация:
просторная квартира в центре города с отличной планировкойплощадь по документам 36 кв. м плюс лоджия, отличные видовые характеристики, документы готовы к сделке квартира очень светлая и уютная, в скандинавском стиле, укомплектована всем необходимым.дом расположен вблизи улиц дзержинского, красной, тургенева, ростовского шоссе, лузана, стахановской.удобное расположение в свободном доступе находятся школы, детские сады, магазины, аптеки и медицинские учреждения, фитнесцентр.в 5 минутах езды торговый центр красная площадь.рядом ашан, гипермаркет магнит, табрис.вблизи расположены летное училище и университет мвд.
просторная квартира в центре города с отличной планировкойплощадь по документам 36 кв. м плюс лоджия, отличные видовые характеристики, документы готовы к сделке квартира очень светлая и уютная, в скандинавском стиле, укомплектована всем необходимым.дом расположен вблизи улиц дзержинского, красной, тургенева, ростовского шоссе, лузана, стахановской.удобное расположение в свободном доступе находятся школы, детские сады, магазины, аптеки и медицинские учреждения, фитнесцентр.в 5 минутах езды торговый центр красная площадь.рядом ашан, гипермаркет магнит, табрис.вблизи расположены летное училище и университет мвд.
Похожие однокомнатные квартиры в районе





