Продается двухкомнатная квартира
Имени П.М. Гаврилова 88, район Центральный
28.01.2026









Стоимость
17 025 000 ₽
233 219 рублей за м2
233 219 рублей за м2
Количество комнат
2 комн
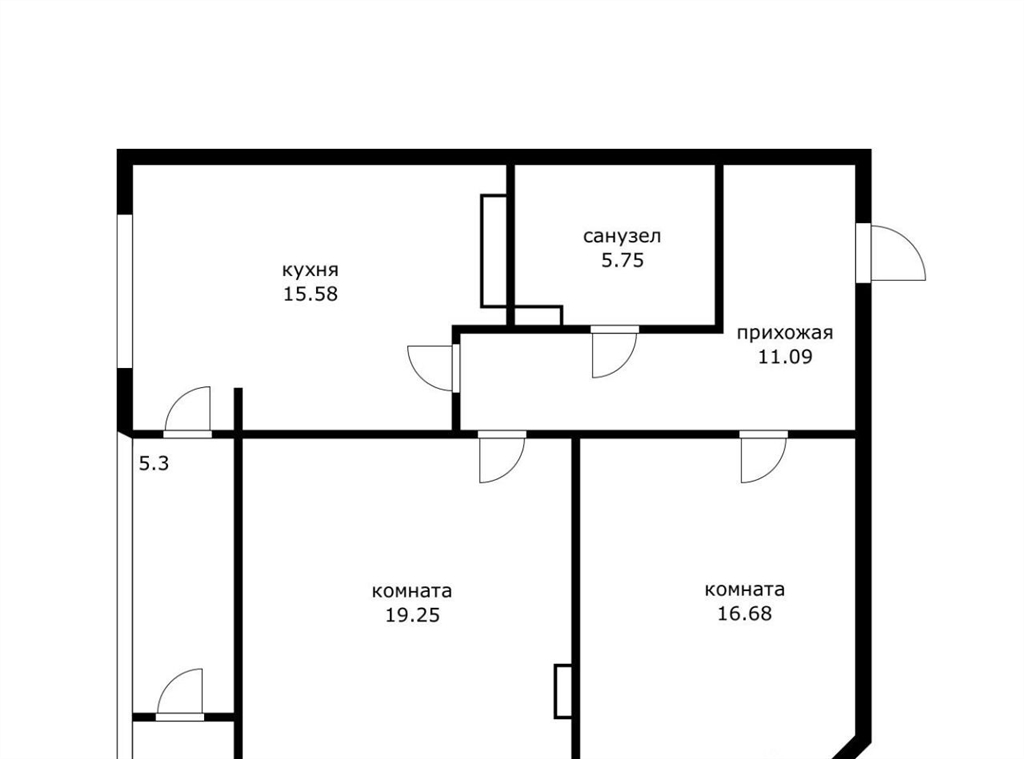
Общая площадь
73 м²
Этаж
11 из 16
Несуществующий объект, неправильная информация? - обязательно сообщите.
Дополнительная информация:
жк арбат краснодар, ул. п.м. гаврилова, 88 монолитнокирпичный дом комфорткласса, сдан в эксплуатацию, развитая инфраструктура и близость к центру города.тип объекта 2комнатная квартираплощадь около 68,1 м²комнаты изолированныеремонт предчистовая отделкасанузел совмещенныйлоджия есть этаж 11основные преимущества просторная планировка для комфортной жизни. высокие потолки и большие окна. современный дом и подъезды, лифт. близость к инфраструктуре магазины, школы, транспорт.арт.1015934140
жк арбат краснодар, ул. п.м. гаврилова, 88 монолитнокирпичный дом комфорткласса, сдан в эксплуатацию, развитая инфраструктура и близость к центру города.тип объекта 2комнатная квартираплощадь около 68,1 м²комнаты изолированныеремонт предчистовая отделкасанузел совмещенныйлоджия есть этаж 11основные преимущества просторная планировка для комфортной жизни. высокие потолки и большие окна. современный дом и подъезды, лифт. близость к инфраструктуре магазины, школы, транспорт.арт.1015934140
Похожие двухкомнатные квартиры в районе Центральный





