Продается двухкомнатная квартира
Обрывная 22/1, район (Черемушки мкр.)
27.04.2026













Стоимость
9 500 000 ₽
163 793 рублей за м2
163 793 рублей за м2
Количество комнат
2 комн
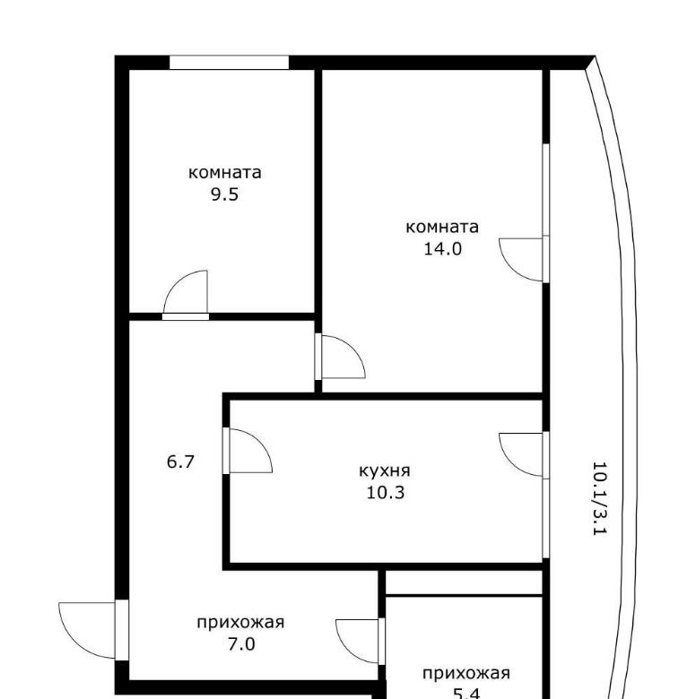
Общая площадь
58 м²
Этаж
5 из 18
Несуществующий объект, неправильная информация? - обязательно сообщите.
Дополнительная информация:
продается просторная двухкомнатная квартира в новом доме 2024 года постройки. общая площадь составляет 58 кв. м, жилая 25 кв. м, кухня 10.3 кв. м. квартира расположена на 5 этаже 18этажного монолитнокирпичного дома. высота потолков 2.8 метра. в квартире есть один совмещенный санузел и выходы на балкон и лоджию.квартира без ремонта, что дает вам возможность оформить пространство по своему вкусу и создать интерьер мечты. просторная кухня позволяет удобно разместить обеденную зону и необходимую технику. планировка квартиры продумана для комфортного проживания.дом оборудован двумя лифтами пассажирским и грузовым, а также пандусом, поэтому можно без труда добраться до квартиры с коляской или велосипедом. для вашего автомобиля предусмотрена подземная парковка, что особенно удобно в зимний период. дом новый, поэтому, а значит, вы не столкнетесь с необходимостью капитального ремонта в ближайшее время.расположение дома позволяет наслаждаться развитой инфраструктурой рядом расположены магазины, где можно приобрести все необходимое для повседневной жизни. дополнительные удобства, такие как детские сады, школы и медицинские учреждения, находятся в доступной близости, что делает эту квартиру отличным выбором для семей с детьми.квартира продается по договору куплипродажи, возможна ипотека. юридически чистая сделка все документы в полном порядке, без обременений. агентство не взимает комиссию с покупателя.приглашаем вас на просмотр, чтобы вы могли лично оценить все преимущества этой квартиры. звоните и записывайтесь на удобное для вас времядополнительно оплачивается комиссия с покупателя 1017079191
продается просторная двухкомнатная квартира в новом доме 2024 года постройки. общая площадь составляет 58 кв. м, жилая 25 кв. м, кухня 10.3 кв. м. квартира расположена на 5 этаже 18этажного монолитнокирпичного дома. высота потолков 2.8 метра. в квартире есть один совмещенный санузел и выходы на балкон и лоджию.квартира без ремонта, что дает вам возможность оформить пространство по своему вкусу и создать интерьер мечты. просторная кухня позволяет удобно разместить обеденную зону и необходимую технику. планировка квартиры продумана для комфортного проживания.дом оборудован двумя лифтами пассажирским и грузовым, а также пандусом, поэтому можно без труда добраться до квартиры с коляской или велосипедом. для вашего автомобиля предусмотрена подземная парковка, что особенно удобно в зимний период. дом новый, поэтому, а значит, вы не столкнетесь с необходимостью капитального ремонта в ближайшее время.расположение дома позволяет наслаждаться развитой инфраструктурой рядом расположены магазины, где можно приобрести все необходимое для повседневной жизни. дополнительные удобства, такие как детские сады, школы и медицинские учреждения, находятся в доступной близости, что делает эту квартиру отличным выбором для семей с детьми.квартира продается по договору куплипродажи, возможна ипотека. юридически чистая сделка все документы в полном порядке, без обременений. агентство не взимает комиссию с покупателя.приглашаем вас на просмотр, чтобы вы могли лично оценить все преимущества этой квартиры. звоните и записывайтесь на удобное для вас времядополнительно оплачивается комиссия с покупателя 1017079191
Похожие двухкомнатные квартиры в районе





