Продается однокомнатная квартира
Восточно-Кругликовская ул 22/3, район
07.02.2026














Стоимость
6 400 000 ₽
177 777 рублей за м2
177 777 рублей за м2
Количество комнат
1 комн
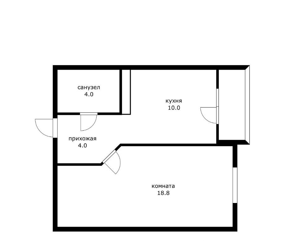
Общая площадь
36 м²
Этаж
15 из 16
Несуществующий объект, неправильная информация? - обязательно сообщите.
Дополнительная информация:
в продаже просторная однокомнатная квартира в жк панорама, расположенная на видовом 15 этаже с современной и продуманной планировкой большая комната грамотно зонирована и позволяет разделить пространство, выделив спальную зону в одной части и уютную гостиную для теплых и приятных вечеров в другой. из окна открывается шикарный вид на стадион краснодар и парк галицкого. кухня полностью укомплектована всей необходимой мебелью и техникой.в коридоре выделена ниша под вместительный шкафкупе, что позволит поддерживать порядок в квартире без лишних шкафов. в квартире выполнен современный и аккуратный ремонт. вся мебель и техника остаются новому собственнику. квартира, в которую легко влюбиться продуманное пространство, красивый вид из окна и забота о комфорте в деталях. звоните.отдельно оплачивается комиссия с покупателя.ко 1015846447
в продаже просторная однокомнатная квартира в жк панорама, расположенная на видовом 15 этаже с современной и продуманной планировкой большая комната грамотно зонирована и позволяет разделить пространство, выделив спальную зону в одной части и уютную гостиную для теплых и приятных вечеров в другой. из окна открывается шикарный вид на стадион краснодар и парк галицкого. кухня полностью укомплектована всей необходимой мебелью и техникой.в коридоре выделена ниша под вместительный шкафкупе, что позволит поддерживать порядок в квартире без лишних шкафов. в квартире выполнен современный и аккуратный ремонт. вся мебель и техника остаются новому собственнику. квартира, в которую легко влюбиться продуманное пространство, красивый вид из окна и забота о комфорте в деталях. звоните.отдельно оплачивается комиссия с покупателя.ко 1015846447
Похожие однокомнатные квартиры в районе





