Продается однокомнатная квартира
Заполярная 35к7, район (Славянский мкр.)
23.01.2026














Стоимость
4 150 000 ₽
122 058 рублей за м2
122 058 рублей за м2
Количество комнат
1 комн
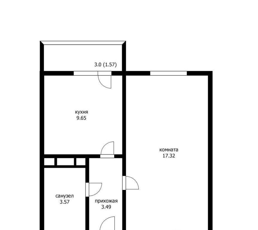
Общая площадь
34 м²
Этаж
3 из 10
Несуществующий объект, неправильная информация? - обязательно сообщите.
Дополнительная информация:
в продаже однокомнатная квартира в спокойном и уютном славянском микрорайоне в жк на красных партизан от надежного застройщика догма комфортный третий этаж.современный ремонт, удобная планировка, просторная кухня позволит комфортно проживать, либо сдавать квартиру. это идеальное место для тех, кто ценит комфорт и доступность. квартира полностью готова к проживанию свежий ремонт, современная мебель и все необходимые удобства создают атмосферу домашнего уюта. вы не будете беспокоиться о юридических вопросах все документы в полном порядке и готовы к продаже.окна выходят во двор. район славится развитой инфраструктурой в шаговой доступности находятся магазины, рынки, школы и детские сады, а также кубгау и поликлиника. для любителей природы рядом расположен ботанический сад отличное место для прогулок.сейчас активно идет строительство новой трамвайной линии, что сделает передвижение по городу еще более удобным. до центра всего 15 минут на автомобиле, что позволяет легко добираться до важных точек города.квартира ждёт именно вас звоните, показ в любое удобное время.
в продаже однокомнатная квартира в спокойном и уютном славянском микрорайоне в жк на красных партизан от надежного застройщика догма комфортный третий этаж.современный ремонт, удобная планировка, просторная кухня позволит комфортно проживать, либо сдавать квартиру. это идеальное место для тех, кто ценит комфорт и доступность. квартира полностью готова к проживанию свежий ремонт, современная мебель и все необходимые удобства создают атмосферу домашнего уюта. вы не будете беспокоиться о юридических вопросах все документы в полном порядке и готовы к продаже.окна выходят во двор. район славится развитой инфраструктурой в шаговой доступности находятся магазины, рынки, школы и детские сады, а также кубгау и поликлиника. для любителей природы рядом расположен ботанический сад отличное место для прогулок.сейчас активно идет строительство новой трамвайной линии, что сделает передвижение по городу еще более удобным. до центра всего 15 минут на автомобиле, что позволяет легко добираться до важных точек города.квартира ждёт именно вас звоните, показ в любое удобное время.
Похожие однокомнатные квартиры в районе





