Продается однокомнатная квартира
Жуковского 11, район (Тракторный мкр.)
01.04.2026











Стоимость
1 145 500 ₽
95 458 рублей за м2
95 458 рублей за м2
Количество комнат
1 комн
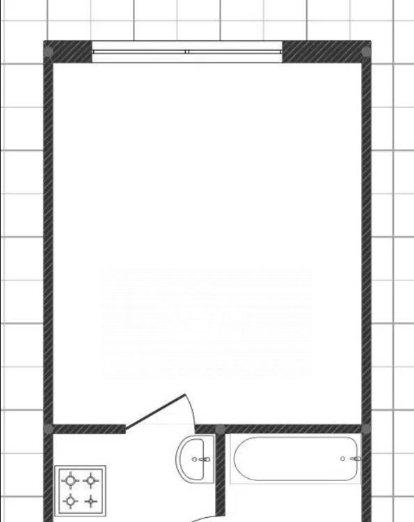
Общая площадь
12 м²
Этаж
1 из 5
Несуществующий объект, неправильная информация? - обязательно сообщите.
Дополнительная информация:
арт. 133669065 продаётся квартира молодёжного типа в районе лтз. находится на 1 этаже кирпичного дома.общая площадь квартиры 12 м2, площадь комнаты 8м2.в квартире установлено пластиковое окно.батареи биметалл.поменяны стояки отопления.установлены счётчики на холодную и горячую воду, свет.соседи порядочные люди.рядом с домом находится детский сад. в шаговой доступности школа, магазины, аптеки.звоните торг
арт. 133669065 продаётся квартира молодёжного типа в районе лтз. находится на 1 этаже кирпичного дома.общая площадь квартиры 12 м2, площадь комнаты 8м2.в квартире установлено пластиковое окно.батареи биметалл.поменяны стояки отопления.установлены счётчики на холодную и горячую воду, свет.соседи порядочные люди.рядом с домом находится детский сад. в шаговой доступности школа, магазины, аптеки.звоните торг
Похожие однокомнатные квартиры в районе





