Продается однокомнатная квартира
Томашевский туп 14, район Промышленный
18.02.2026

















Стоимость
9 000 000 ₽
118 421 рублей за м2
118 421 рублей за м2
Количество комнат
1 комн
Общая площадь
76 м²
Этаж
9 из 16
Несуществующий объект, неправильная информация? - обязательно сообщите.
Дополнительная информация:
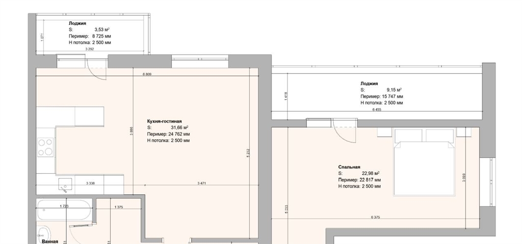
продаётся уютная однокомнатная квартира площадью 70.7 квадратных метров в микрорайоне безымянка. квартира расположена на 9 этаже 17этажного кирпичного дома, построенного в 2009 году. площадь без учета лоджий 70,7.пространство квартиры продумано до мелочей комната спальня составляет 23 квадратных метра, и лоджия 9м которую можно использовать как кабинет и спорт зону. кухня гостинная занимает целых 31 квадратный метр, предоставляя достаточно места как для приготовления пищи, так и для семейных ужинов или встреч с друзьями. лоджия 3,5м. так же есть техническая возможность выделить отдельно комнату и отдельно кухню интерьер квартиры выполнен в стиле евроремонта, что обеспечивает современный и стильный вид помещения. совмещённый санузел оборудован всем необходимым.для маленьких жителей комплекса во дворе обустроена детская площадка, а удобная парковка избавит от проблем с поиском места для автомобиля. район обладает развитой инфраструктурой рядом находятся школа и детский сад, что особенно удобно для семей с детьми. также неподалёку расположен парк, где можно приятно провести время на свежем воздухе. для повседневных покупок рядом расположены продуктовые магазины юган и минимаркет, а также студии красоты zona стиля и студия красоты, что позволит всегда оставаться в тренде.приглашаем вас оценить все преимущества данной квартиры лично она ждёт своих новых владельцев, готовых наполнить её теплом и счастьем.
продаётся уютная однокомнатная квартира площадью 70.7 квадратных метров в микрорайоне безымянка. квартира расположена на 9 этаже 17этажного кирпичного дома, построенного в 2009 году. площадь без учета лоджий 70,7.пространство квартиры продумано до мелочей комната спальня составляет 23 квадратных метра, и лоджия 9м которую можно использовать как кабинет и спорт зону. кухня гостинная занимает целых 31 квадратный метр, предоставляя достаточно места как для приготовления пищи, так и для семейных ужинов или встреч с друзьями. лоджия 3,5м. так же есть техническая возможность выделить отдельно комнату и отдельно кухню интерьер квартиры выполнен в стиле евроремонта, что обеспечивает современный и стильный вид помещения. совмещённый санузел оборудован всем необходимым.для маленьких жителей комплекса во дворе обустроена детская площадка, а удобная парковка избавит от проблем с поиском места для автомобиля. район обладает развитой инфраструктурой рядом находятся школа и детский сад, что особенно удобно для семей с детьми. также неподалёку расположен парк, где можно приятно провести время на свежем воздухе. для повседневных покупок рядом расположены продуктовые магазины юган и минимаркет, а также студии красоты zona стиля и студия красоты, что позволит всегда оставаться в тренде.приглашаем вас оценить все преимущества данной квартиры лично она ждёт своих новых владельцев, готовых наполнить её теплом и счастьем.
Похожие однокомнатные квартиры в районе Промышленный





