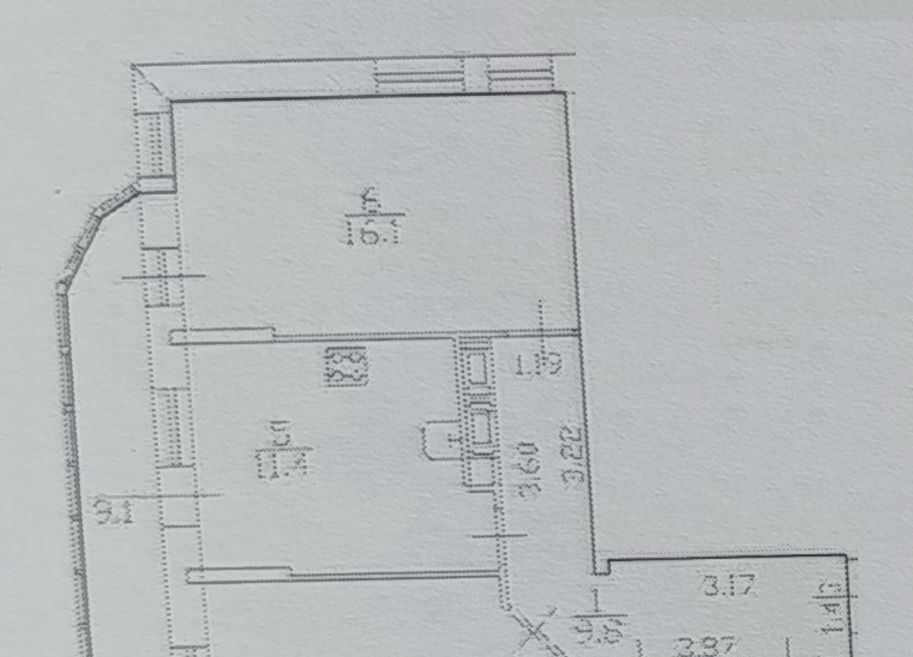
Продается двухкомнатная квартира
Федора Абрамова 21к1, район Выборгский
18.03.2026





















Стоимость
14 380 000 ₽
252 280 рублей за м2
252 280 рублей за м2
Количество комнат
2 комн
Общая площадь
57 м²
Этаж
25 из 29
Несуществующий объект, неправильная информация? - обязательно сообщите.
Дополнительная информация:
вашему вниманию предлагается просторная двухкомнатная квартира с очень хорошим ремонтом. 25 этаж, окна выходят во двор, что ограничивает шум с улицы. комнаты и кухня имеют выходы на просторную, утепленную лоджию. заменены все окна на более качественные, на лоджии установлены двухкамерные стеклопакеты. в квартире выполнен качественный ремонт, идеально выровнены стены, заменена вся электрика и сантехника. на кухне , лоджии и в санузле пол с подогревом. оборудованная гардеробная. потолки в квартире натяжные. в спальне стоит кондиционер. в комнатах на полу ламинат, в коридоре, на кухне и лоджии керамическая плитка . дорогая, стильная кухня со встроенной бытовой техникой. практически вся мебель остается новым владельцам. есть небольшой остаток по непогашенной ипотеке в газпром банке.
вашему вниманию предлагается просторная двухкомнатная квартира с очень хорошим ремонтом. 25 этаж, окна выходят во двор, что ограничивает шум с улицы. комнаты и кухня имеют выходы на просторную, утепленную лоджию. заменены все окна на более качественные, на лоджии установлены двухкамерные стеклопакеты. в квартире выполнен качественный ремонт, идеально выровнены стены, заменена вся электрика и сантехника. на кухне , лоджии и в санузле пол с подогревом. оборудованная гардеробная. потолки в квартире натяжные. в спальне стоит кондиционер. в комнатах на полу ламинат, в коридоре, на кухне и лоджии керамическая плитка . дорогая, стильная кухня со встроенной бытовой техникой. практически вся мебель остается новым владельцам. есть небольшой остаток по непогашенной ипотеке в газпром банке.
Похожие двухкомнатные квартиры в районе Выборгский





