Продается однокомнатная квартира
Госпитальная ул 38/45, район Пушкинский
19.12.2025















Стоимость
5 999 999 ₽
187 499 рублей за м2
187 499 рублей за м2
Количество комнат
1 комн
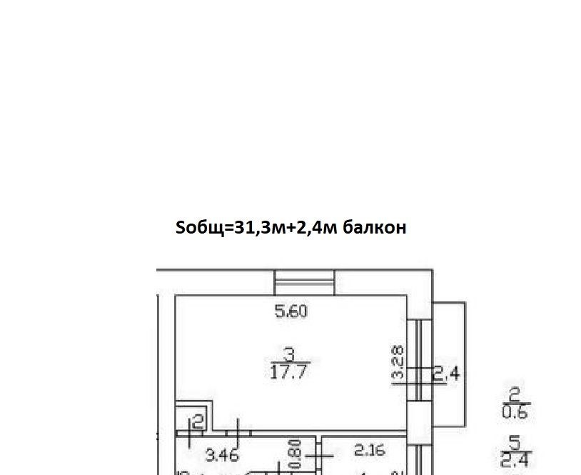
Общая площадь
32 м²
Этаж
3 из 3
Несуществующий объект, неправильная информация? - обязательно сообщите.
Дополнительная информация:
в продаже однокомнатная квартира, по адресу санктпетербург, г. пушкин, ул. госпитальная, д. 3845, общей площадью 31,3 балкон 2,4 м.кв квартира в кирпичном доме расположена на 3 из 3 этажекухнягостиная 17,7 м., спальня 5,2 м.квартира с новым косметическим ремонтом, поклеены новые обои, в санузлах новые пластиковые панели на стенах, на полах новый линолеум, натяжные потолки, после косметического ремонта никто не жил.в пешей доступности расположено множество сетевых магазинов, на любой вкус, так же пункты выдачи всех известных маркетплейсов, кафе, рестораны, и несколько действующих детских садов и школ.также в пешей доступности располагается жд вокзал.о будущей сделкеодин взрослый собственник.прямая продажа.возможна покупка в ипотекуесли вы продаете свою квартиру, то мы можем принять ее в зачет, аналогично системе трейдинн.звоните и я с радостью запишу вас на просмотр
в продаже однокомнатная квартира, по адресу санктпетербург, г. пушкин, ул. госпитальная, д. 3845, общей площадью 31,3 балкон 2,4 м.кв квартира в кирпичном доме расположена на 3 из 3 этажекухнягостиная 17,7 м., спальня 5,2 м.квартира с новым косметическим ремонтом, поклеены новые обои, в санузлах новые пластиковые панели на стенах, на полах новый линолеум, натяжные потолки, после косметического ремонта никто не жил.в пешей доступности расположено множество сетевых магазинов, на любой вкус, так же пункты выдачи всех известных маркетплейсов, кафе, рестораны, и несколько действующих детских садов и школ.также в пешей доступности располагается жд вокзал.о будущей сделкеодин взрослый собственник.прямая продажа.возможна покупка в ипотекуесли вы продаете свою квартиру, то мы можем принять ее в зачет, аналогично системе трейдинн.звоните и я с радостью запишу вас на просмотр
Похожие однокомнатные квартиры в районе Пушкинский





