Продается двухкомнатная квартира
Некрасова 41, район Центральный
01.03.2026


































Стоимость
23 450 000 ₽
426 363 рублей за м2
426 363 рублей за м2
Количество комнат
2 комн
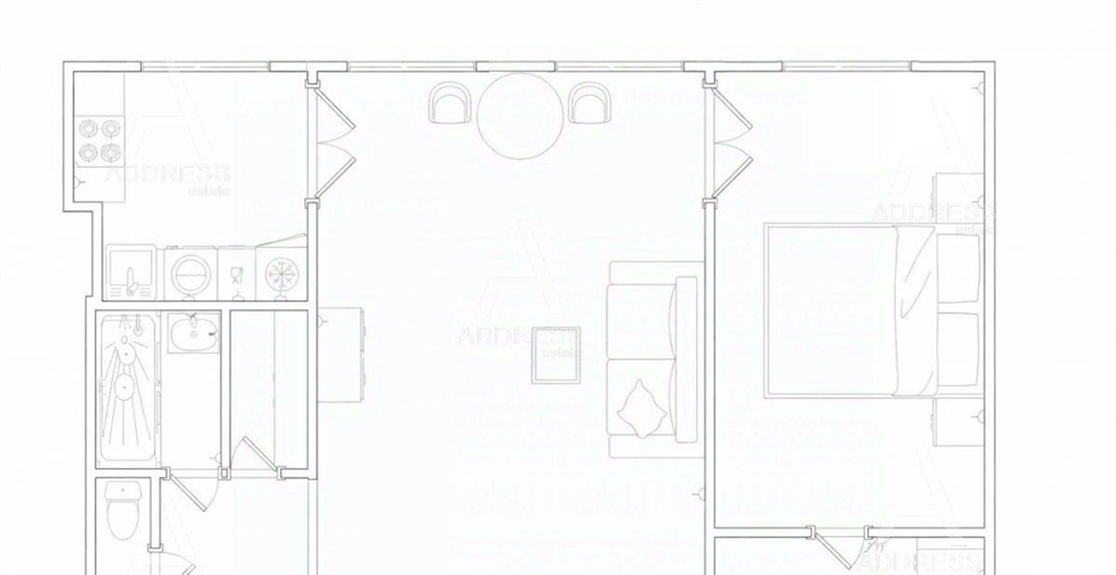
Общая площадь
55 м²
Этаж
4 из 4
Несуществующий объект, неправильная информация? - обязательно сообщите.
Дополнительная информация:
в продаже авторская 2 к квартира в самом центре санктпетербурга. о квартире 55.5 кв м. очень светлая и просторная потолки 3,7 метра центральная вода заменена вся электрика и трубы 2 гардеробные в коридоре и спальне встроенная мебель и техника комод 1950х годов восстановленный стулья братьев тонет 1860 и 1910 оригинал восстановленные люстры ручной работы столешницы натуральный гранит испанская плитка в суо доме в доме всего 4 этажа по 2 квартиры на этаже перекрытия бетонные плиты чистая и ухоженная парадная с высокими потолками закрытый двор есть возможность парковать машину интеллигентные соседи об инфраструктуре до м. восстания 5 мин пешком до галлереи 7 мин. пешком рядом с домом рестораны на любой вкус бкз 2 мин пешком прямая продажа. 1 собственник. номер объекта 154726114453
в продаже авторская 2 к квартира в самом центре санктпетербурга. о квартире 55.5 кв м. очень светлая и просторная потолки 3,7 метра центральная вода заменена вся электрика и трубы 2 гардеробные в коридоре и спальне встроенная мебель и техника комод 1950х годов восстановленный стулья братьев тонет 1860 и 1910 оригинал восстановленные люстры ручной работы столешницы натуральный гранит испанская плитка в суо доме в доме всего 4 этажа по 2 квартиры на этаже перекрытия бетонные плиты чистая и ухоженная парадная с высокими потолками закрытый двор есть возможность парковать машину интеллигентные соседи об инфраструктуре до м. восстания 5 мин пешком до галлереи 7 мин. пешком рядом с домом рестораны на любой вкус бкз 2 мин пешком прямая продажа. 1 собственник. номер объекта 154726114453
Похожие двухкомнатные квартиры в районе Центральный





