Продается двухкомнатная квартира
Новоизмайловское, Кубинская 80к1, район Московский
07.04.2026

Стоимость
18 500 000 ₽
349 056 рублей за м2
349 056 рублей за м2
Количество комнат
2 комн
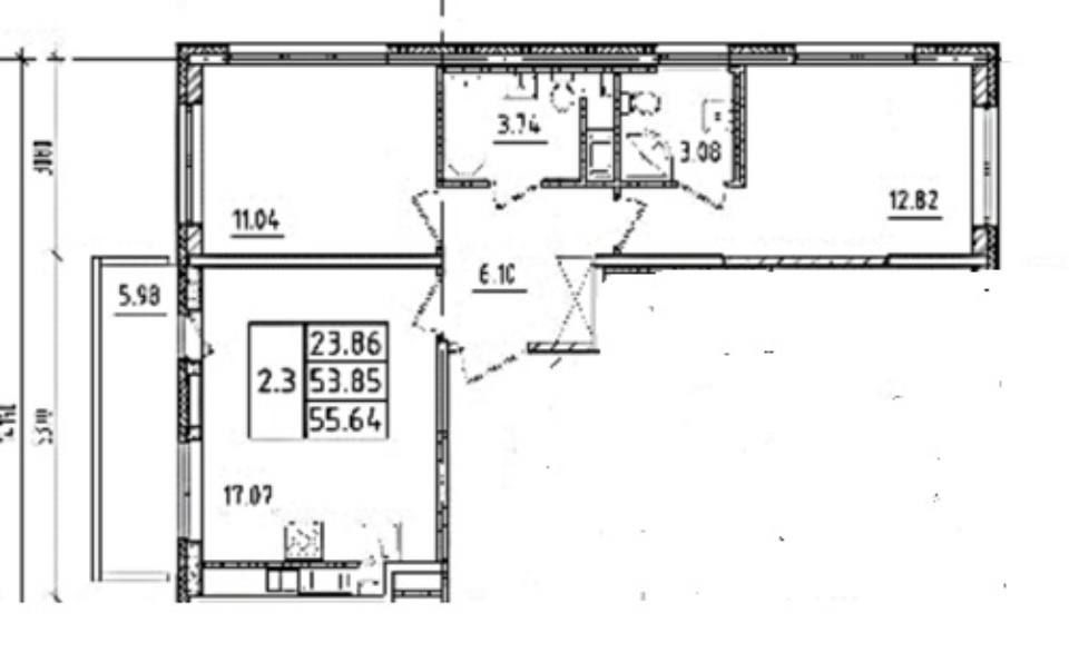
Общая площадь
53 м²
Этаж
9 из 12
Несуществующий объект, неправильная информация? - обязательно сообщите.
Дополнительная информация:
предлагается в продажу просторная двухкомнатная квартира в жк бизнес классаквартира с отделкой, большая кухня гостинаяо комплексе престижный московский район территория выполнена в авторской архитектурной концепции 2 центральных входа с ресепшеном и лаундж зонами уютные дворы, аллеи для прогулок.развитая инфраструктура, экологически чистый, зеленый район. прекрасно развита транспортная доступность
предлагается в продажу просторная двухкомнатная квартира в жк бизнес классаквартира с отделкой, большая кухня гостинаяо комплексе престижный московский район территория выполнена в авторской архитектурной концепции 2 центральных входа с ресепшеном и лаундж зонами уютные дворы, аллеи для прогулок.развитая инфраструктура, экологически чистый, зеленый район. прекрасно развита транспортная доступность
Похожие двухкомнатные квартиры в районе Московский





