Продается двухкомнатная квартира
Октябрьская наб 34к2, район Невский
27.11.2025








































Стоимость
18 000 000 ₽
327 272 рублей за м2
327 272 рублей за м2
Количество комнат
2 комн
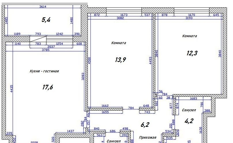
Общая площадь
55 м²
Этаж
7 из 14
Несуществующий объект, неправильная информация? - обязательно сообщите.
Дополнительная информация:
продается уютная двухкомнатная квартира с великолепным видом на неву. квартира имеет просторную кухню гостиную, соединенная с балконом. кухня и системы хранения продуманы для мелочей. с окон открывается шикарный вид на закаты и на неву. две комнаты правильной формы позволяют разместить мебель для большой семьи. два раздельных санузла. также есть паркинг, выход в который находится в соседней двери с подъездом. паркинг продается отдельно. дом расположен рядом с новой школой и садами. в самом доме находятся пункты выдачи заказов, магазины и кофейни. юридическое сопровождение сделки осуществляется агентством.
продается уютная двухкомнатная квартира с великолепным видом на неву. квартира имеет просторную кухню гостиную, соединенная с балконом. кухня и системы хранения продуманы для мелочей. с окон открывается шикарный вид на закаты и на неву. две комнаты правильной формы позволяют разместить мебель для большой семьи. два раздельных санузла. также есть паркинг, выход в который находится в соседней двери с подъездом. паркинг продается отдельно. дом расположен рядом с новой школой и садами. в самом доме находятся пункты выдачи заказов, магазины и кофейни. юридическое сопровождение сделки осуществляется агентством.
Похожие двухкомнатные квартиры в районе Невский





