Продается однокомнатная квартира
Петровский, Ремесленная 17литЗ, район Петроградский
17.02.2026


















Стоимость
39 000 000 ₽
847 826 рублей за м2
847 826 рублей за м2
Количество комнат
1 комн
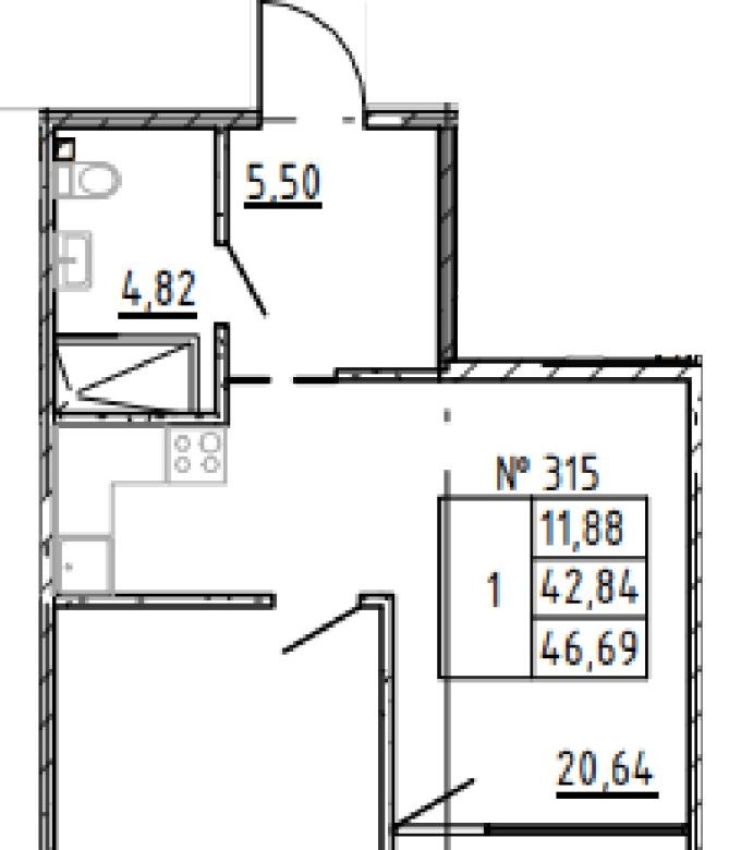
Общая площадь
46 м²
Этаж
2 из 8
Несуществующий объект, неправильная информация? - обязательно сообщите.
Дополнительная информация:
премиальная видовая 2е квартира в жк 1733продаётся изысканная квартира площадью 46,7 м² с панорамным видом на неву, первая линия предложение для тех, кто ценит уровень, пространство и атмосферу города у воды.здесь каждый день начинается с отражения неба в неве и заканчивается спокойствием, которое невозможно купить в стандартной застройке.планировочное решение просторная кухнягостиная 20,6 м² центр квартиры и место для приёма гостей уютная изолированная спальня 11,9 м² продуманная прихожая 5,5 м² с возможностью размещения вместительных систем хранения совмещённый санузел 4,8 м² лоджия 3,85 м² личное пространство для отдыха с видом на воду.панорамные окна наполняют квартиру светом и подчёркивают главный акцент открытый вид на неву, который остаётся ценностью вне времени и рынка.о жилом комплексе современная архитектура и высокий класс строительства закрытая территория и круглосуточная система безопасности подземный паркинг приватная атмосфера и статусное окружениеэта квартира не просто квадратные метры, а образ жизни.идеально подойдёт как для личного проживания, так и как ликвидный инвестиционный актив.
премиальная видовая 2е квартира в жк 1733продаётся изысканная квартира площадью 46,7 м² с панорамным видом на неву, первая линия предложение для тех, кто ценит уровень, пространство и атмосферу города у воды.здесь каждый день начинается с отражения неба в неве и заканчивается спокойствием, которое невозможно купить в стандартной застройке.планировочное решение просторная кухнягостиная 20,6 м² центр квартиры и место для приёма гостей уютная изолированная спальня 11,9 м² продуманная прихожая 5,5 м² с возможностью размещения вместительных систем хранения совмещённый санузел 4,8 м² лоджия 3,85 м² личное пространство для отдыха с видом на воду.панорамные окна наполняют квартиру светом и подчёркивают главный акцент открытый вид на неву, который остаётся ценностью вне времени и рынка.о жилом комплексе современная архитектура и высокий класс строительства закрытая территория и круглосуточная система безопасности подземный паркинг приватная атмосфера и статусное окружениеэта квартира не просто квадратные метры, а образ жизни.идеально подойдёт как для личного проживания, так и как ликвидный инвестиционный актив.
Похожие однокомнатные квартиры в районе Петроградский





