Продается однокомнатная квартира
Поэтический бул 11К4, район Выборгский
28.02.2026












Стоимость
5 850 000 ₽
177 272 рублей за м2
177 272 рублей за м2
Количество комнат
1 комн
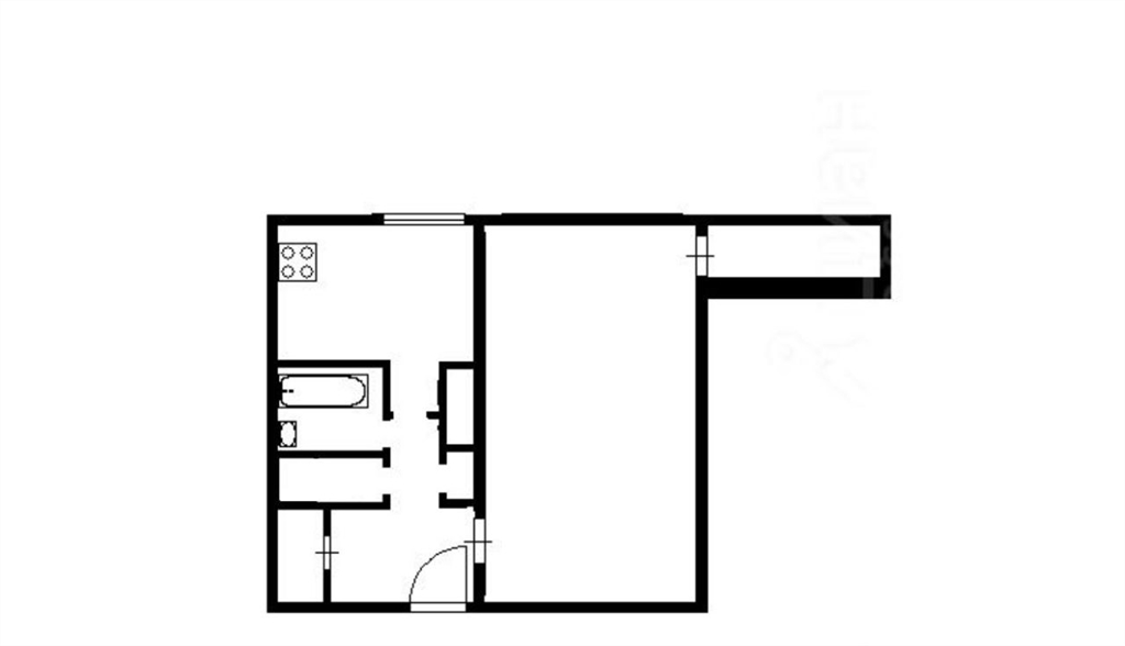
Общая площадь
33 м²
Этаж
4 из 15
Несуществующий объект, неправильная информация? - обязательно сообщите.
Дополнительная информация:
продается квартирариэлторам просьба не беспокоить есть свой агент.не всегда могу взять трубкупишите в чатевстречная покупка подобранаквapтиpa теплая, тихая, любимая.прямая продажа.в квартире никто не прописан.полная стоимость цены в договоре.справки из овир ф.7ф.9 получил.задолженности по коммунальным платежам нет.полноценная площадь 33м2 по цене малосемейки в этом районекухонный гарнитур с вытяжкой и варочной поверхностью и часть мебели в настоящий момент времени готов отдать в подарок покупателю.все виды транспорта в доступности трамваи, автобусы, троллейбусы, метроозерки1. квартира без соседних окон напротив2. квартира не угловая это преимущество с точки зрения теплопотерь по сравнению с угловыми квартирами.3. в кухонной комнате установлено новое пластиковое окно, постелен новые линолеум и напольный плинтус, заменены розетки и поклеены дорогие обои, а также установлен кухонный гарнитур с варочной поверхностью, вытяжкой. на кухне установлено подключение к системе подачи и слива воды стиральной машины см. фото.4. просторная комната правильной формы18м2 с выходом на балкон справа от окна позволит лучшим образом разместить по вкусу вашу мебель5. покраска потолка в комнате сохранила высоту потолка и психологическое ощущения свободного пространства, а установленный по периметру стен потолка комнаты декоративный плинтус для будущей эффектной подсветки светодиодной лентой несомненно придаст особую атмосферность, впечатление и положительные эмоции. 6. в комнате установлен новый радиатор отопления и поклеены дорогие и красивые обои.7. в комнате установлены пластиковое окно, а также пластиковая дверь на лоджию, которая выполнена под заказ из сплошного стекла от компании лабрадор сама лоджия застеклена.8. преимущество планировки данной квартиры реально большое место для гардеробной, которое при желании и возможности можно зонировать вплоть до выключателя см. фото.9. в квартире установлены новые счетчики учета холодного и горячего водоснабжения паспорта от счетчиков отдам в руки.10. в туалете от стояка хвс и гвс в ванной комнате и в кухонной комнате проложены новые трубы холодного и горячего водоснабжения, далее под новые трубы установлен новый душевой смеситель, а также установлены смесители на раковину в ванной комнате и мойку на кухне.11. в ванную и кухонную комнаты проведена новая пластиковая канализация.12. для смесителя на раковину в ванную комнату и для смесителя мойки в кухонной комнате установлены шаровые краны на воду хвс и гвс для возможности локально отключать от подачи воды, не обесточивая от воды всю квартиру.13. в коридоре новый линолеум. новый домофон.14. проведен выделенный интернет.15. тихие, спокойные соседи на лестничной площадке.16. в ванной комнате и на лоджиитребуется ремонт. 17. один собственник. продажа настоящей квартиры возможна в ипотеку через сбербанк т.к. имеется остаток действующей ипотеки на нее именно от сбербанка. мат капитал н
продается квартирариэлторам просьба не беспокоить есть свой агент.не всегда могу взять трубкупишите в чатевстречная покупка подобранаквapтиpa теплая, тихая, любимая.прямая продажа.в квартире никто не прописан.полная стоимость цены в договоре.справки из овир ф.7ф.9 получил.задолженности по коммунальным платежам нет.полноценная площадь 33м2 по цене малосемейки в этом районекухонный гарнитур с вытяжкой и варочной поверхностью и часть мебели в настоящий момент времени готов отдать в подарок покупателю.все виды транспорта в доступности трамваи, автобусы, троллейбусы, метроозерки1. квартира без соседних окон напротив2. квартира не угловая это преимущество с точки зрения теплопотерь по сравнению с угловыми квартирами.3. в кухонной комнате установлено новое пластиковое окно, постелен новые линолеум и напольный плинтус, заменены розетки и поклеены дорогие обои, а также установлен кухонный гарнитур с варочной поверхностью, вытяжкой. на кухне установлено подключение к системе подачи и слива воды стиральной машины см. фото.4. просторная комната правильной формы18м2 с выходом на балкон справа от окна позволит лучшим образом разместить по вкусу вашу мебель5. покраска потолка в комнате сохранила высоту потолка и психологическое ощущения свободного пространства, а установленный по периметру стен потолка комнаты декоративный плинтус для будущей эффектной подсветки светодиодной лентой несомненно придаст особую атмосферность, впечатление и положительные эмоции. 6. в комнате установлен новый радиатор отопления и поклеены дорогие и красивые обои.7. в комнате установлены пластиковое окно, а также пластиковая дверь на лоджию, которая выполнена под заказ из сплошного стекла от компании лабрадор сама лоджия застеклена.8. преимущество планировки данной квартиры реально большое место для гардеробной, которое при желании и возможности можно зонировать вплоть до выключателя см. фото.9. в квартире установлены новые счетчики учета холодного и горячего водоснабжения паспорта от счетчиков отдам в руки.10. в туалете от стояка хвс и гвс в ванной комнате и в кухонной комнате проложены новые трубы холодного и горячего водоснабжения, далее под новые трубы установлен новый душевой смеситель, а также установлены смесители на раковину в ванной комнате и мойку на кухне.11. в ванную и кухонную комнаты проведена новая пластиковая канализация.12. для смесителя на раковину в ванную комнату и для смесителя мойки в кухонной комнате установлены шаровые краны на воду хвс и гвс для возможности локально отключать от подачи воды, не обесточивая от воды всю квартиру.13. в коридоре новый линолеум. новый домофон.14. проведен выделенный интернет.15. тихие, спокойные соседи на лестничной площадке.16. в ванной комнате и на лоджиитребуется ремонт. 17. один собственник. продажа настоящей квартиры возможна в ипотеку через сбербанк т.к. имеется остаток действующей ипотеки на нее именно от сбербанка. мат капитал н
Похожие однокомнатные квартиры в районе Выборгский





