Продается однокомнатная квартира
просп. Просвещения 43, район Выборгский
13.11.2025






















Стоимость
16 000 000 ₽
290 909 рублей за м2
290 909 рублей за м2
Количество комнат
1 комн
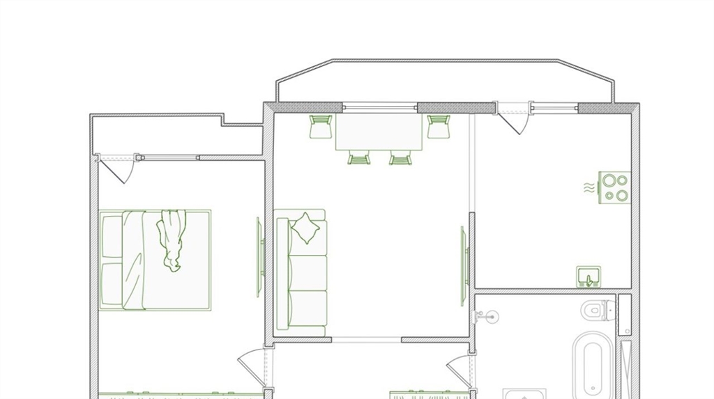
Общая площадь
55 м²
Этаж
19 из 25
Несуществующий объект, неправильная информация? - обязательно сообщите.
Дополнительная информация:
продается евро2 комнатная квартира с дизайнерским ремонтом в жк лондонпарк. прямая продажа, один взрослый собственник, без обременений, документы готовы к сделке.площадь квартиры с учетом лоджий 63,76 м2.два года назад в квартире выполнен капитальный дизайнерский ремонт с заменой инженерных коммуникаций, выполнена независимая разводка труб водоснабжения, приобретена вся необходимая мебель и бытовая техника можно сразу въехать и жить.дом кирпичномонолитный, 2017 года постройки, застройщик л1. дворовая территория, вместе с парадной находится на стилобате на высоте четырех этажей над уровнем земли, которые занимает трк парк молл, в парадной есть 2 грузовых и 1 пассажирский лифт. чистая парадная без запахов и мусора.в 5минутной пешей доступности есть большое количество коммерции помимо трк парк молл, рядом находятся аптеки, продуктовые магазины, фитнесклуб с бассейном, медцентр, булочные, кофейни и многое другое. дом расположен в развитом районе санктпетербурга, поэтому с социальной и транспортной инфраструктурой все очень хорошо. в пешей доступности множество школ и детских садов, взрослая и детская поликлиники, детские секции. удобный выезд на кад в 5 минутах. до метро проспект просвещения 2 км 2025 минут пешком, 15 минут на общественном транспорте, 8 минут на машине.звоните и пишите, чтобы записаться на просмотр, буду рад ответить на любые интересующие вопросы.
продается евро2 комнатная квартира с дизайнерским ремонтом в жк лондонпарк. прямая продажа, один взрослый собственник, без обременений, документы готовы к сделке.площадь квартиры с учетом лоджий 63,76 м2.два года назад в квартире выполнен капитальный дизайнерский ремонт с заменой инженерных коммуникаций, выполнена независимая разводка труб водоснабжения, приобретена вся необходимая мебель и бытовая техника можно сразу въехать и жить.дом кирпичномонолитный, 2017 года постройки, застройщик л1. дворовая территория, вместе с парадной находится на стилобате на высоте четырех этажей над уровнем земли, которые занимает трк парк молл, в парадной есть 2 грузовых и 1 пассажирский лифт. чистая парадная без запахов и мусора.в 5минутной пешей доступности есть большое количество коммерции помимо трк парк молл, рядом находятся аптеки, продуктовые магазины, фитнесклуб с бассейном, медцентр, булочные, кофейни и многое другое. дом расположен в развитом районе санктпетербурга, поэтому с социальной и транспортной инфраструктурой все очень хорошо. в пешей доступности множество школ и детских садов, взрослая и детская поликлиники, детские секции. удобный выезд на кад в 5 минутах. до метро проспект просвещения 2 км 2025 минут пешком, 15 минут на общественном транспорте, 8 минут на машине.звоните и пишите, чтобы записаться на просмотр, буду рад ответить на любые интересующие вопросы.
Похожие однокомнатные квартиры в районе Выборгский





