Продается однокомнатная квартира
Светлановское, Политехническая 6, район Выборгский
12.01.2026





















Стоимость
11 300 000 ₽
245 652 рублей за м2
245 652 рублей за м2
Количество комнат
1 комн
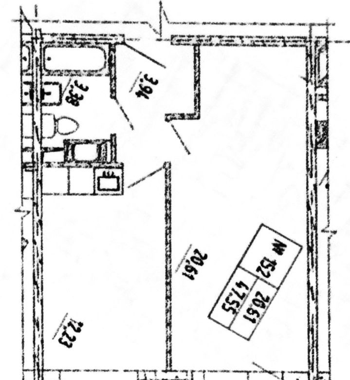
Общая площадь
46 м²
Этаж
8 из 11
Несуществующий объект, неправильная информация? - обязательно сообщите.
Дополнительная информация:
санктпетербург, ул. политехническая, дом 6. апартаменты в жк like.современные апартаменты общей площадью 46,3 кв. м, в новом монолитном жк бизнескласса like 2019 года постройки. сделка один взрослый собственник свободная продажа без обременений быстрый выход на сделку полная стоимость в договорекомплекс и аппартаменты высокий этаж меньше шума и отличный обзор современный дом,с закрытой территорией, системой видеонаблюдения и контролем удобная планировка с возможностью зонирования, хорошая шумо и теплоизоляция в парадных чисто, ухоженно, работают современные лифты подходит для проживания и сдачи в арендурасположение и инфраструктура супермаркеты, фитнесклубы, кафе и рестораны удобные выезды на основные городские магистрали заправка рядом с территорией комплекса трк европолис в 20 минутах пешком до станции метро пл. мужества 11 минут пешком. просмотры по договоренности звоните, я всегда на связи помощь в одобрении ипотеки, по ставке ниже чем в банках, по партнерской программе банков. страхование ипотеки.
санктпетербург, ул. политехническая, дом 6. апартаменты в жк like.современные апартаменты общей площадью 46,3 кв. м, в новом монолитном жк бизнескласса like 2019 года постройки. сделка один взрослый собственник свободная продажа без обременений быстрый выход на сделку полная стоимость в договорекомплекс и аппартаменты высокий этаж меньше шума и отличный обзор современный дом,с закрытой территорией, системой видеонаблюдения и контролем удобная планировка с возможностью зонирования, хорошая шумо и теплоизоляция в парадных чисто, ухоженно, работают современные лифты подходит для проживания и сдачи в арендурасположение и инфраструктура супермаркеты, фитнесклубы, кафе и рестораны удобные выезды на основные городские магистрали заправка рядом с территорией комплекса трк европолис в 20 минутах пешком до станции метро пл. мужества 11 минут пешком. просмотры по договоренности звоните, я всегда на связи помощь в одобрении ипотеки, по ставке ниже чем в банках, по партнерской программе банков. страхование ипотеки.
Похожие однокомнатные квартиры в районе Выборгский





