Продается двухкомнатная квартира
Волковское, Бухарестская 66К3, район Фрунзенский
11.11.2025









Стоимость
7 900 000 ₽
171 739 рублей за м2
171 739 рублей за м2
Количество комнат
2 комн
Общая площадь
46 м²
Этаж
2 из 5
Несуществующий объект, неправильная информация? - обязательно сообщите.
Дополнительная информация:
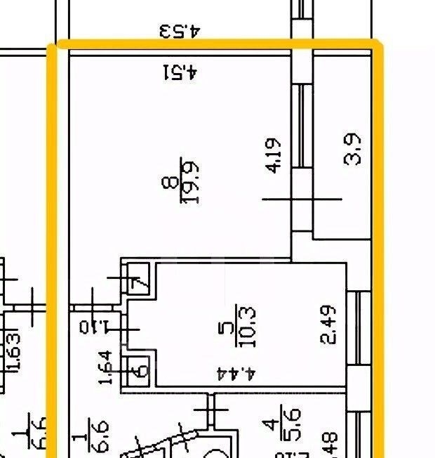
код объекта 1910696. дорогой покупатель вашему вниманию предлагается 2х комнатная квартира в 5 минут ходьбы от метро международная по адресу санктпетербург, бухарестская улицеа, 66 корпус 3 одно из лучших предложений в плане цены и качестваобщая площадь 46 кв. м. 30,2 кв. м жилая площадь. большая светлая гостиная площадью 19,9 кв. м и уютная отдельная комната 10,3 кв. м. вместительная укомплектованная кухня 5,6кв.м для приготовления вкусных завтраков, обедов и ужинов. раздельный санузел для удобного повседневного использования всей семьей. вместительный коридор 6,6кв. м застеклённая лоджия 3,9кв м, где можно обустроить небольшое место для отдыха, работы или хранения. квартира солнечная, светлая, теплая. окна выходят в тихий зеленый двор. самый востребованный ходовой 2ой этаж выгодное расположение и шикарный этаж ждут васпредусмотрено все для комфортного проживания. вся мебель и техника останется вам. эта квартира свой уголок для отдыха, наполнения, релакса.квартира идеально подойдёт как для жизни, так и под сдачуаренду. подойдет для возрастных людей, молодых специалистов, так и для семьи с детьми. развитый район. в шаговой доступности есть все что необходимо детские сады, школы, техникумы, университеты, детские плащадки, зоны отдыха и прогулок. во дворе дома 236 школа ваш малыш за минуту сам может дойти до школы, в минуте ходьбы расположен спбгуп санктпетербургский гуманитарный университет профсоюзов, детский сад 117 у дома, а также в 51, минутах поликлиника, трц континент, рио, международный и тд. рядом несколько парков для прогулок.до метро 510 минут пешком. удобное расположение позволит быстро добраться до центра города и основных транспортных магистралей.юридически все чисто. простая безопасная сделка. подойдет любой вид оплаты сертификат, ипотека, материнский капитал, наличные средства. квартира без обременений, документы готовы к сделке. 1 собственник будет на сделке. мы гарантируем безопасную сделку и юридическую поддержку нашим клиентам. поможем одобрить ипотеку с сниженной ставкой.записывайтесь на просмотр
код объекта 1910696. дорогой покупатель вашему вниманию предлагается 2х комнатная квартира в 5 минут ходьбы от метро международная по адресу санктпетербург, бухарестская улицеа, 66 корпус 3 одно из лучших предложений в плане цены и качестваобщая площадь 46 кв. м. 30,2 кв. м жилая площадь. большая светлая гостиная площадью 19,9 кв. м и уютная отдельная комната 10,3 кв. м. вместительная укомплектованная кухня 5,6кв.м для приготовления вкусных завтраков, обедов и ужинов. раздельный санузел для удобного повседневного использования всей семьей. вместительный коридор 6,6кв. м застеклённая лоджия 3,9кв м, где можно обустроить небольшое место для отдыха, работы или хранения. квартира солнечная, светлая, теплая. окна выходят в тихий зеленый двор. самый востребованный ходовой 2ой этаж выгодное расположение и шикарный этаж ждут васпредусмотрено все для комфортного проживания. вся мебель и техника останется вам. эта квартира свой уголок для отдыха, наполнения, релакса.квартира идеально подойдёт как для жизни, так и под сдачуаренду. подойдет для возрастных людей, молодых специалистов, так и для семьи с детьми. развитый район. в шаговой доступности есть все что необходимо детские сады, школы, техникумы, университеты, детские плащадки, зоны отдыха и прогулок. во дворе дома 236 школа ваш малыш за минуту сам может дойти до школы, в минуте ходьбы расположен спбгуп санктпетербургский гуманитарный университет профсоюзов, детский сад 117 у дома, а также в 51, минутах поликлиника, трц континент, рио, международный и тд. рядом несколько парков для прогулок.до метро 510 минут пешком. удобное расположение позволит быстро добраться до центра города и основных транспортных магистралей.юридически все чисто. простая безопасная сделка. подойдет любой вид оплаты сертификат, ипотека, материнский капитал, наличные средства. квартира без обременений, документы готовы к сделке. 1 собственник будет на сделке. мы гарантируем безопасную сделку и юридическую поддержку нашим клиентам. поможем одобрить ипотеку с сниженной ставкой.записывайтесь на просмотр
Похожие двухкомнатные квартиры в районе Фрунзенский





