Продается двухкомнатная квартира
8-й Воздушной Армии 44, район Дзержинский
12.03.2026




















Стоимость
6 350 000 ₽
124 509 рублей за м2
124 509 рублей за м2
Количество комнат
2 комн
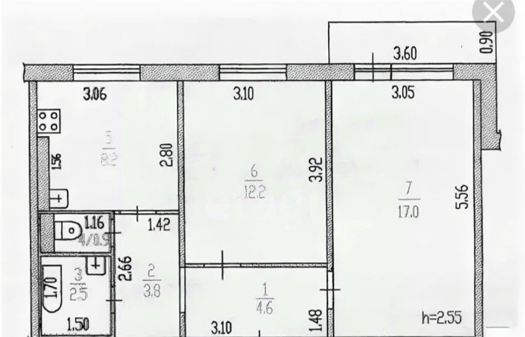
Общая площадь
51 м²
Этаж
4 из 16
Несуществующий объект, неправильная информация? - обязательно сообщите.
Дополнительная информация:
продается просторная двухкомнатная квартира площадью 51,3 м² в 16этажном доме улучшенной планировки в сердце дзepжинcкoго районa ceмь вeтpoв. объект расположен на 4 этаже, все комнаты изолированные, с видом во двор. кухня 8,1 м² позволяет комфортно разместить обеденную зону. квартира полностью готова к проживанию выполнен качественный евроремонт с заменой инженерных коммуникаций, установлены натяжные потолки, система теплого пола, современная сантехника и новая электропроводка. в стоимость включена вся мебель и техника, включая кухонный гарнитур, холодильник, телевизор, стиральную машину, плиту и сплитсистему. дом оснащен пассажирским и грузовым лифтами, содержится в чистоте. квартира подключена к пульту охраны . район отличается развитой инфраструктурой в шаговой доступности находятся поликлиника, детский сад, школа, парк, множество магазинов, аптек и отделений банков. остановка общественного транспорта расположена рядом с домом, что обеспечивает быструю связь с другими районами города. квартира принадлежит одному взрослому собственнику, не имеет обременений и долгов по коммунальным платежам. для покупателя возможно бесплатное юридическое сопровождение сделки и помощь в оформлении ипотечного кредита. код пользователя 200809номер в базе 12025896
продается просторная двухкомнатная квартира площадью 51,3 м² в 16этажном доме улучшенной планировки в сердце дзepжинcкoго районa ceмь вeтpoв. объект расположен на 4 этаже, все комнаты изолированные, с видом во двор. кухня 8,1 м² позволяет комфортно разместить обеденную зону. квартира полностью готова к проживанию выполнен качественный евроремонт с заменой инженерных коммуникаций, установлены натяжные потолки, система теплого пола, современная сантехника и новая электропроводка. в стоимость включена вся мебель и техника, включая кухонный гарнитур, холодильник, телевизор, стиральную машину, плиту и сплитсистему. дом оснащен пассажирским и грузовым лифтами, содержится в чистоте. квартира подключена к пульту охраны . район отличается развитой инфраструктурой в шаговой доступности находятся поликлиника, детский сад, школа, парк, множество магазинов, аптек и отделений банков. остановка общественного транспорта расположена рядом с домом, что обеспечивает быструю связь с другими районами города. квартира принадлежит одному взрослому собственнику, не имеет обременений и долгов по коммунальным платежам. для покупателя возможно бесплатное юридическое сопровождение сделки и помощь в оформлении ипотечного кредита. код пользователя 200809номер в базе 12025896
Похожие двухкомнатные квартиры в районе Дзержинский





