Продается однокомнатная квартира
Генерала Шумилова 27, район Кировский
24.02.2026









Стоимость
2 250 000 ₽
62 500 рублей за м2
62 500 рублей за м2
Количество комнат
1 комн
Общая площадь
36 м²
Этаж
4 из 4
Несуществующий объект, неправильная информация? - обязательно сообщите.
Дополнительная информация:
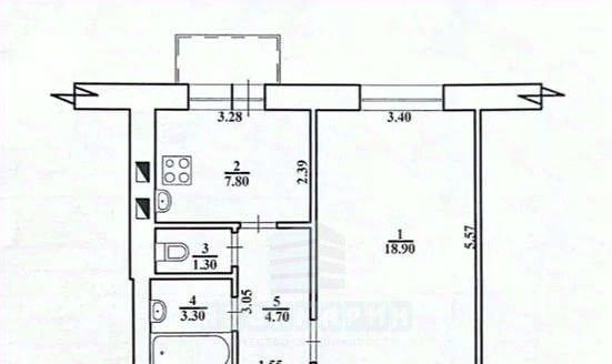
предлагаем вашему вниманию 1 комнатную квартиру в кировском районе.общей площадью 36 м.кв.жилая 18,9 м.кв.кухня 7,8 м.кв.о квартире квартира расположена на четвертом этаже, четырех этажного дома. квартира не угловая, очень теплая, имеется балкон с выходом из кухни.трубы водопровода полипропилен, на полу линолеум, на стенах обои, на потолке потолочная плитка. эта квартира станет вашим уютным гнездышком высокие потолки создают ощущение простора, а изолированные комнаты обеспечивают комфорт и приватность.о доме дом кирпичный 1957 года постройки, перекрытия жб, не является архитектурным памятником больше приемущество локации развитая инфраструктура. в шаговой доступности объекты социальной сферы, гимназия 9, 2 детских сада, военкомат, отделение сбербанка, детский сад, стоматологическая поликлиника и т.д. во дворе детская площадка. зеленая зона вокруг дома. удобная парковка рядом с домом. остановка транспорта, электричкио собственнике один взрослый собственник , в собственности с 2025 годао документах и сделке подходит под все виды оплаты. записывайтесь на просмотр, звоните, пишите. отвечу на все вопросы, проконсультирую по сделке. поможем в одобрении ипотеки любого банка под выгодный лечение ки кредитной истории
предлагаем вашему вниманию 1 комнатную квартиру в кировском районе.общей площадью 36 м.кв.жилая 18,9 м.кв.кухня 7,8 м.кв.о квартире квартира расположена на четвертом этаже, четырех этажного дома. квартира не угловая, очень теплая, имеется балкон с выходом из кухни.трубы водопровода полипропилен, на полу линолеум, на стенах обои, на потолке потолочная плитка. эта квартира станет вашим уютным гнездышком высокие потолки создают ощущение простора, а изолированные комнаты обеспечивают комфорт и приватность.о доме дом кирпичный 1957 года постройки, перекрытия жб, не является архитектурным памятником больше приемущество локации развитая инфраструктура. в шаговой доступности объекты социальной сферы, гимназия 9, 2 детских сада, военкомат, отделение сбербанка, детский сад, стоматологическая поликлиника и т.д. во дворе детская площадка. зеленая зона вокруг дома. удобная парковка рядом с домом. остановка транспорта, электричкио собственнике один взрослый собственник , в собственности с 2025 годао документах и сделке подходит под все виды оплаты. записывайтесь на просмотр, звоните, пишите. отвечу на все вопросы, проконсультирую по сделке. поможем в одобрении ипотеки любого банка под выгодный лечение ки кредитной истории
Похожие однокомнатные квартиры в районе Кировский





