Продается однокомнатная квартира
Германа Титова 12, район Краснооктябрьский
16.12.2025










Стоимость
2 800 000 ₽
87 500 рублей за м2
87 500 рублей за м2
Количество комнат
1 комн
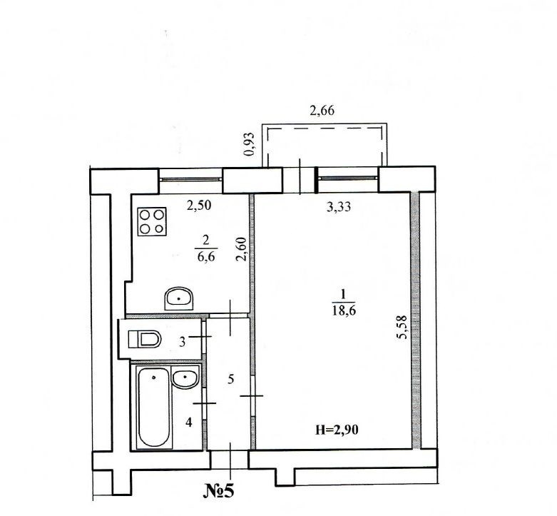
Общая площадь
32 м²
Этаж
3 из 4
Несуществующий объект, неправильная информация? - обязательно сообщите.
Дополнительная информация:
продаётся однокомнатная квартира в кирпичном доме по ул. им. геpманa титовa, 12. третий этаж 4х этажного дома, 32, 5 общая18,6 жилая6,6 кухня, высота потолков 2,9 м., не угловая, с балконом. дом расположен в удобном месте рядом красивый парк, магазины, удобная транспортная доступность. квартира без ремонта не надо платить за чужой ремонт, сразу сделаете как хотите. входная дверь металлическая, установлены новые пластиковые окна без отделки откосов, установлены все счетчики, техническое обслуживание газового оборудования в 2025 году проведено. остальное на фото. один взрослый собственник. обременения, зарегистрированные лица, долги по жкх отсутствуют. документы для продажи подготовлены. прим. договора обслуживания с агентствами риелторами не заключаю.
продаётся однокомнатная квартира в кирпичном доме по ул. им. геpманa титовa, 12. третий этаж 4х этажного дома, 32, 5 общая18,6 жилая6,6 кухня, высота потолков 2,9 м., не угловая, с балконом. дом расположен в удобном месте рядом красивый парк, магазины, удобная транспортная доступность. квартира без ремонта не надо платить за чужой ремонт, сразу сделаете как хотите. входная дверь металлическая, установлены новые пластиковые окна без отделки откосов, установлены все счетчики, техническое обслуживание газового оборудования в 2025 году проведено. остальное на фото. один взрослый собственник. обременения, зарегистрированные лица, долги по жкх отсутствуют. документы для продажи подготовлены. прим. договора обслуживания с агентствами риелторами не заключаю.
Похожие однокомнатные квартиры в районе Краснооктябрьский





