Продается двухкомнатная квартира
Попова 14, район Фрунзенский
02.12.2025






Стоимость
5 958 400 ₽
99 306 рублей за м2
99 306 рублей за м2
Количество комнат
2 комн
Общая площадь
60 м²
Этаж
3 из 9
Несуществующий объект, неправильная информация? - обязательно сообщите.
Дополнительная информация:
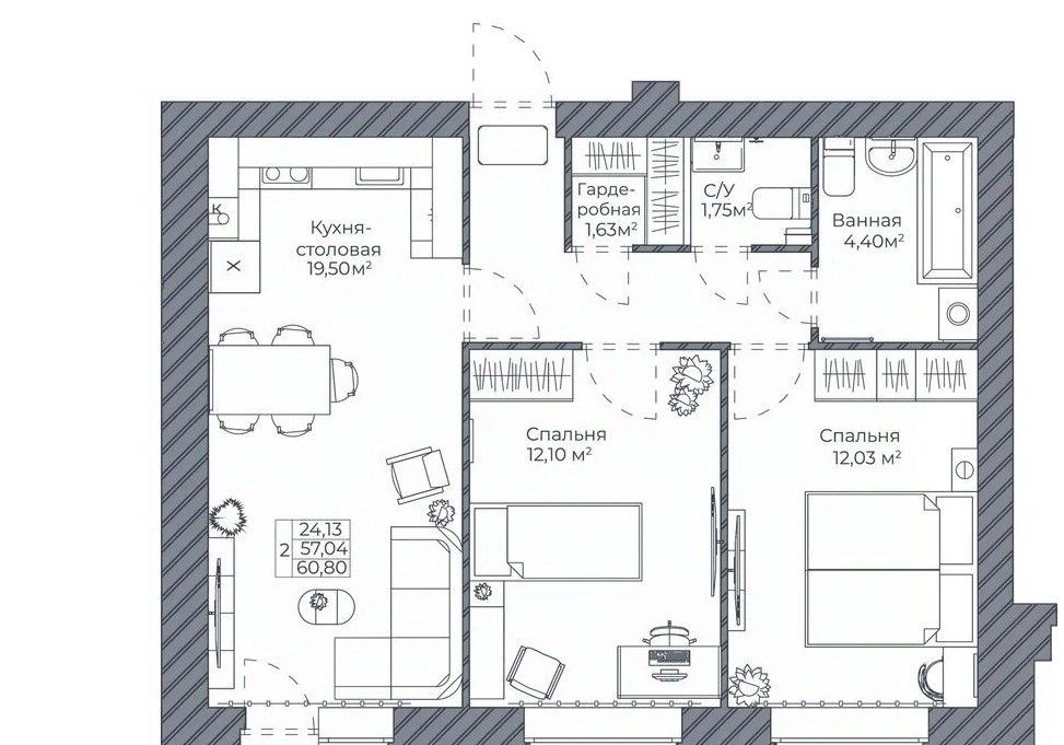
мечта семьи в комфортклассе просторная 2комнатная квартира 60,8 м² с просторной кухнейстоловой 19,5 м² и раздельным санузлом в жк домашний ищете идеальное пространство для комфортной семейной жизни, где каждая деталь продумана для вашего удобства представляем эксклюзивное предложение просторную и функциональную 2комнатную квартиру в новом жилом комплексе домашний, который по праву относится к классу комфорт. это идеальный выбор для семьи, ценящей высокое качество жизни, современные решения и уют в своем доме.о квартире 60,8 м² простор и удобство для вашей семьи гигантская кухнястоловая 19,5 м² настоящее сердце вашей будущей квартиры и центр семейной жизни это не просто кухня, а огромное, многофункциональное пространство, которое легко вместит и современную кухонную зону, и полноценную обеденную группу, а также уютную зону для отдыха с диваном и телевизором. фактически, вы получаете функционал полноценной евротрешки идеальное место для семейных ужинов, приема гостей и уютных вечеров две изолированные комнаты 12,1 м² и 12,03 м² уютные и светлые спальни, которые можно обустроить как взрослую спальню, детскую комнату, функциональный кабинет или гостевую. пространства достаточно для комфортного размещения всех членов семьи. раздельный санузел важное преимущество для комфортного проживания семьи это значительно повышает функциональность и удобство квартиры, позволяя избежать очередей и обеспечивая больше приватности.преимущества жк домашний ваш дом комфорткласса высокий уровень жизни жк домашний создан для тех, кто ценит каждую деталь. здесь современные решения, качественные материалы и новейшие технологии обеспечивают долговечность, надежность и максимальный комфорт вашего нового дома. продуманность в каждой детали от планировок квартир до благоустройства территории всё нацелено на создание идеальной среды для вашего комфортного проживания. качество и надежность использование проверенных материалов и передовых технологий в строительстве гарантирует долговечность и безопасность вашего жилья.эта 2комнатная квартира в жк домашний идеальный выбор для семьи, которая ищет просторное, функциональное и качественное жилье в современном комплексе, где каждая деталь способствует вашему комфорту и уюту.не упустите свой шанс обрести дом вашей мечты звоните прямо сейчас, чтобы получить подробную консультацию и забронировать вашу будущую квартиру
мечта семьи в комфортклассе просторная 2комнатная квартира 60,8 м² с просторной кухнейстоловой 19,5 м² и раздельным санузлом в жк домашний ищете идеальное пространство для комфортной семейной жизни, где каждая деталь продумана для вашего удобства представляем эксклюзивное предложение просторную и функциональную 2комнатную квартиру в новом жилом комплексе домашний, который по праву относится к классу комфорт. это идеальный выбор для семьи, ценящей высокое качество жизни, современные решения и уют в своем доме.о квартире 60,8 м² простор и удобство для вашей семьи гигантская кухнястоловая 19,5 м² настоящее сердце вашей будущей квартиры и центр семейной жизни это не просто кухня, а огромное, многофункциональное пространство, которое легко вместит и современную кухонную зону, и полноценную обеденную группу, а также уютную зону для отдыха с диваном и телевизором. фактически, вы получаете функционал полноценной евротрешки идеальное место для семейных ужинов, приема гостей и уютных вечеров две изолированные комнаты 12,1 м² и 12,03 м² уютные и светлые спальни, которые можно обустроить как взрослую спальню, детскую комнату, функциональный кабинет или гостевую. пространства достаточно для комфортного размещения всех членов семьи. раздельный санузел важное преимущество для комфортного проживания семьи это значительно повышает функциональность и удобство квартиры, позволяя избежать очередей и обеспечивая больше приватности.преимущества жк домашний ваш дом комфорткласса высокий уровень жизни жк домашний создан для тех, кто ценит каждую деталь. здесь современные решения, качественные материалы и новейшие технологии обеспечивают долговечность, надежность и максимальный комфорт вашего нового дома. продуманность в каждой детали от планировок квартир до благоустройства территории всё нацелено на создание идеальной среды для вашего комфортного проживания. качество и надежность использование проверенных материалов и передовых технологий в строительстве гарантирует долговечность и безопасность вашего жилья.эта 2комнатная квартира в жк домашний идеальный выбор для семьи, которая ищет просторное, функциональное и качественное жилье в современном комплексе, где каждая деталь способствует вашему комфорту и уюту.не упустите свой шанс обрести дом вашей мечты звоните прямо сейчас, чтобы получить подробную консультацию и забронировать вашу будущую квартиру
Похожие двухкомнатные квартиры в районе Фрунзенский





