Продается двухкомнатная квартира
Строителей 18, район Дзержинский
17.02.2026







Стоимость
3 999 999 ₽
74 074 рублей за м2
74 074 рублей за м2
Количество комнат
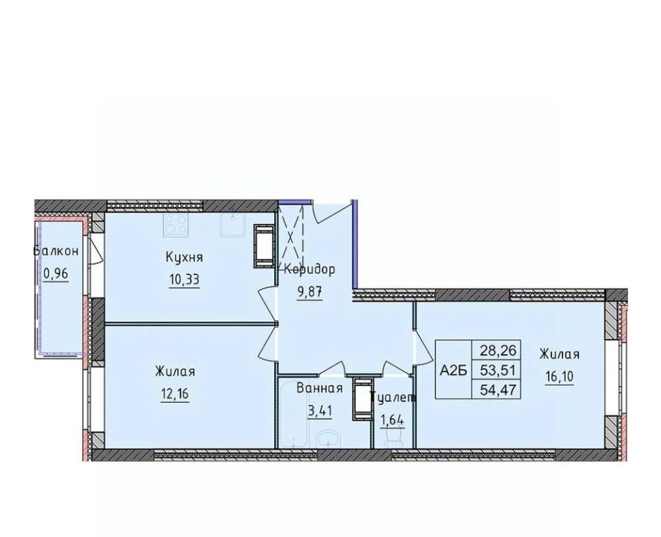
2 комн
Общая площадь
54 м²
Этаж
6 из 18
Несуществующий объект, неправильная информация? - обязательно сообщите.
Дополнительная информация:
добрый деньпродаём просторную, светлую, тёплую двухкомнатную квартиру в новом доме с удобной планировкой, в прекрасном развитом районе со сложившейся инфраструктурой.кстати, если вы сейчас продаёте свою квартиру, то мы готовы сразу её купитьесть вопросы по квартире или хотите записаться на просмотр звонитеописание квартиры две изолированные комнаты 16 и 12 м². функциональная кухня 10 м² с выходом на просторный балкон готовьте и принимайте гостей с удовольствием. комфортная вместительная прихожая 9 м² можно установить систему хранения шкафкупе. раздельный санузел, ванная 3,4 и 1,6 м² есть место для стиральной машины. есть балкон 3 м² дополнительное место для хранения ваших вещей и отдыха. низкие коммунальные платежи, так как в доме индивидуальные приборы учета тепла. установлены качественные пластиковые окна, хорошая тепло и звукоизоляция. квартира в предчистовой отделке, предоставляющая вам возможность создать уникальное пространство, соответствующее вашим вкусам и предпочтениямпро дом и инфраструктуру благоустроенная дворовая территория удобные пешеходные зоны и места отдыха, озеленение, детские площадки. есть открытая стоянка всегда найдется место для вашего автомобиля. в шаговой доступности есть вся необходимая социальная и коммерческая инфраструктура для комфортного проживания магазины, кафе, пункты выдачи заказов, салоны красоты, аптеки, банковские отделения, больница, фитнес клуб, школы, детские сады, торговоразвлекательный центр альтаир. транспортная доступность в 5ти минутах ходьбы остановки общественного транспорта.оформление продажи все документы готовы быстрый выход на сделку. покупатель квартиры не платит комиссию.
добрый деньпродаём просторную, светлую, тёплую двухкомнатную квартиру в новом доме с удобной планировкой, в прекрасном развитом районе со сложившейся инфраструктурой.кстати, если вы сейчас продаёте свою квартиру, то мы готовы сразу её купитьесть вопросы по квартире или хотите записаться на просмотр звонитеописание квартиры две изолированные комнаты 16 и 12 м². функциональная кухня 10 м² с выходом на просторный балкон готовьте и принимайте гостей с удовольствием. комфортная вместительная прихожая 9 м² можно установить систему хранения шкафкупе. раздельный санузел, ванная 3,4 и 1,6 м² есть место для стиральной машины. есть балкон 3 м² дополнительное место для хранения ваших вещей и отдыха. низкие коммунальные платежи, так как в доме индивидуальные приборы учета тепла. установлены качественные пластиковые окна, хорошая тепло и звукоизоляция. квартира в предчистовой отделке, предоставляющая вам возможность создать уникальное пространство, соответствующее вашим вкусам и предпочтениямпро дом и инфраструктуру благоустроенная дворовая территория удобные пешеходные зоны и места отдыха, озеленение, детские площадки. есть открытая стоянка всегда найдется место для вашего автомобиля. в шаговой доступности есть вся необходимая социальная и коммерческая инфраструктура для комфортного проживания магазины, кафе, пункты выдачи заказов, салоны красоты, аптеки, банковские отделения, больница, фитнес клуб, школы, детские сады, торговоразвлекательный центр альтаир. транспортная доступность в 5ти минутах ходьбы остановки общественного транспорта.оформление продажи все документы готовы быстрый выход на сделку. покупатель квартиры не платит комиссию.
Похожие двухкомнатные квартиры в районе Дзержинский





