Продается двухкомнатная квартира
Красноармейский просп 51, район Центральный
16.03.2026
































Стоимость
6 890 000 ₽
140 612 рублей за м2
140 612 рублей за м2
Количество комнат
2 комн
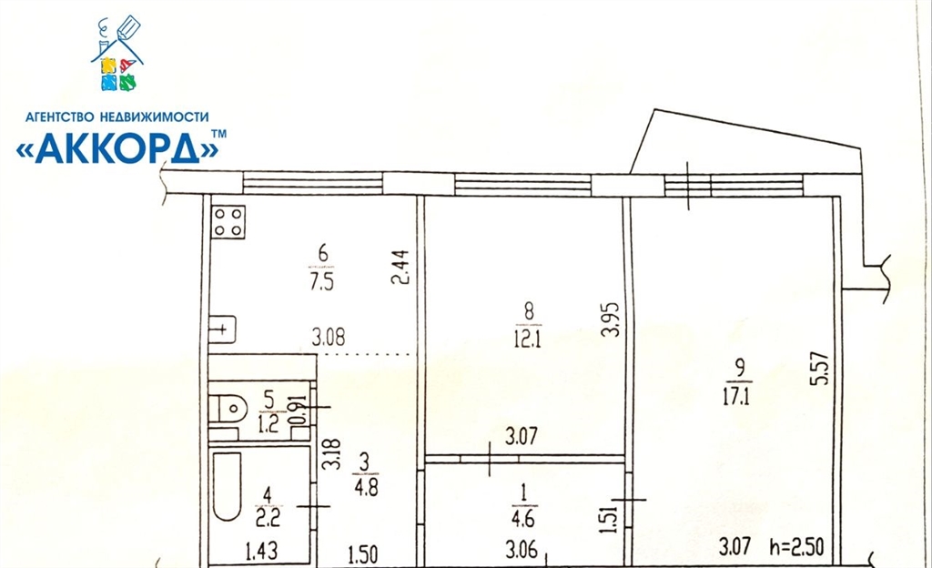
Общая площадь
49 м²
Этаж
4 из 9
Несуществующий объект, неправильная информация? - обязательно сообщите.
Дополнительная информация:
предлагаем к продаже уютную и светлую 2комнатную квартиру 121 серии. это идеальное предложение для тех, кто ищет спокойное, светлое и готовое для жизни пространство.перед вами очень светлая и просторная 2х комнатная квартира площадью 49,5 м² в современном панельном доме. вы сразу оцените удобную изолированную планировку, где у каждого члена семьи есть свое личное пространство.состояние сделан косметический ремонт. все чисто, аккуратно и готово к вашему заезду удобства раздельный санузел, что очень практично для семьи. а свой балкон станет отличным местом для утреннего кофе или хранения сезонных вещей.вид и атмосфера окна выходят на солнечную стороны. квартира наполнена светом, а из окон открывается привычный и спокойный городской пейзаж.во дворе и подъезде видеонаблюдение.выбирая этот дом, вы выбираете не просто квартиру, а комфортную среду для жизни. всё под рукой в шаговой доступности несколько школ, гимназий и лицеев 22, 27, 55, 86 и 124, детский сад хочу и буду 33 и др. в шаговой доступности высшие учебные заведения, взрослые и детские поликлиники. а так же торговые центры гулливер парк, ситицентр, магазины, аптеки, парикмахерские и вся инфраструктура для вашего комфортного проживания. вам не придется преодолевать километры за покупками и на занятия.транспорт район обладает отличной транспортной развязкой трамваи 1, 4, 7. автобусы и маршрутные такси 17 различных маршрутов в любую точку города добраться до работы или в любой уголок города не составит труда.двор для жизни ухоженный двор с детской площадкой. ваши дети будут гулять на безопасной территории, а вы сможете заниматься спортом на свежем воздухе. во дворе есть открытая парковка. есть возможность ставить авто на подзеиную парковку.право собственности 1 взрослый собственник, все документы в полном порядке.нет обременений, долгов, ограничений или прописанных людей. полная юридическая чистота.рассмотрим любой удобный для вас способ расчета ипотека или наличные.готовы к быстрому выходу на сделку.
предлагаем к продаже уютную и светлую 2комнатную квартиру 121 серии. это идеальное предложение для тех, кто ищет спокойное, светлое и готовое для жизни пространство.перед вами очень светлая и просторная 2х комнатная квартира площадью 49,5 м² в современном панельном доме. вы сразу оцените удобную изолированную планировку, где у каждого члена семьи есть свое личное пространство.состояние сделан косметический ремонт. все чисто, аккуратно и готово к вашему заезду удобства раздельный санузел, что очень практично для семьи. а свой балкон станет отличным местом для утреннего кофе или хранения сезонных вещей.вид и атмосфера окна выходят на солнечную стороны. квартира наполнена светом, а из окон открывается привычный и спокойный городской пейзаж.во дворе и подъезде видеонаблюдение.выбирая этот дом, вы выбираете не просто квартиру, а комфортную среду для жизни. всё под рукой в шаговой доступности несколько школ, гимназий и лицеев 22, 27, 55, 86 и 124, детский сад хочу и буду 33 и др. в шаговой доступности высшие учебные заведения, взрослые и детские поликлиники. а так же торговые центры гулливер парк, ситицентр, магазины, аптеки, парикмахерские и вся инфраструктура для вашего комфортного проживания. вам не придется преодолевать километры за покупками и на занятия.транспорт район обладает отличной транспортной развязкой трамваи 1, 4, 7. автобусы и маршрутные такси 17 различных маршрутов в любую точку города добраться до работы или в любой уголок города не составит труда.двор для жизни ухоженный двор с детской площадкой. ваши дети будут гулять на безопасной территории, а вы сможете заниматься спортом на свежем воздухе. во дворе есть открытая парковка. есть возможность ставить авто на подзеиную парковку.право собственности 1 взрослый собственник, все документы в полном порядке.нет обременений, долгов, ограничений или прописанных людей. полная юридическая чистота.рассмотрим любой удобный для вас способ расчета ипотека или наличные.готовы к быстрому выходу на сделку.
Похожие двухкомнатные квартиры в районе Центральный





