Продается однокомнатная квартира
Дружбы 27, район Заводский
11.02.2026
















Стоимость
5 200 000 ₽
130 000 рублей за м2
130 000 рублей за м2
Количество комнат
1 комн
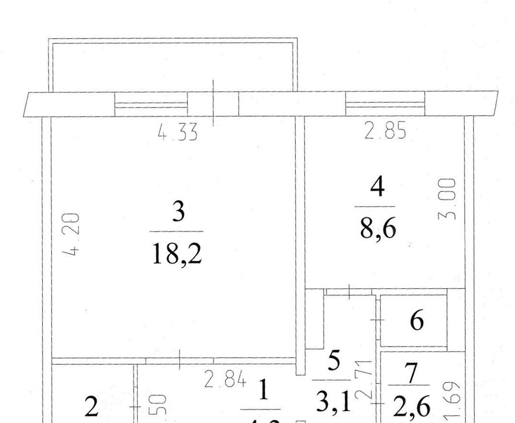
Общая площадь
40 м²
Этаж
2 из 9
Несуществующий объект, неправильная информация? - обязательно сообщите.
Дополнительная информация:
предлагаю вашему вниманию к покупке 1ком. квартиру в спальном районе по адресу улица дружбы, дом 27, общая40кв.м 3,6кв.м остекленный балкон, жилая 18,2 кв.м, кухня 8,6 кв.м. на 2м этаже 9ти этажного дома 2011 года постройки. стеклопакеты, остекленный балкон кафель в ванной комнате от пола до потолка и фартук на кухне сан.узел раздельный, не угловая.документы к продаже готовы. один совершеннолетний собственник более 6ти лет в собственности. обременений и арестов нет.остались вопросы звоните, с удовольствием отвечу на них и договоримся на осмотр
предлагаю вашему вниманию к покупке 1ком. квартиру в спальном районе по адресу улица дружбы, дом 27, общая40кв.м 3,6кв.м остекленный балкон, жилая 18,2 кв.м, кухня 8,6 кв.м. на 2м этаже 9ти этажного дома 2011 года постройки. стеклопакеты, остекленный балкон кафель в ванной комнате от пола до потолка и фартук на кухне сан.узел раздельный, не угловая.документы к продаже готовы. один совершеннолетний собственник более 6ти лет в собственности. обременений и арестов нет.остались вопросы звоните, с удовольствием отвечу на них и договоримся на осмотр
Похожие однокомнатные квартиры в районе Заводский





