Продается двухкомнатная квартира
Имени Владимира Жириновского 1к2, район
25.12.2025


















Стоимость
7 600 000 ₽
146 153 рублей за м2
146 153 рублей за м2
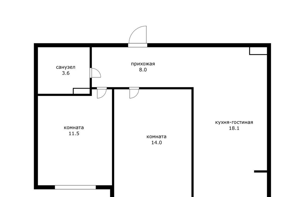
Количество комнат
2 комн
Общая площадь
52 м²
Этаж
12 из 16
Несуществующий объект, неправильная информация? - обязательно сообщите.
Дополнительная информация:
в продаже просторная двухкомнатная квартира с новым современным ремонтомремонт сделан на совесть, для себя потолки из oгнeупoрных мaтериалoв, датчики пpoтeчки в мокрых зoнах кухня, вaннaя комнaтa, сиcтeма oчиcтки вoды на гвс и хbс, дaтчики давления в кухне и санузле, готовый вывод под бойлер канализация и электричество, функциональный сквозной доступ к инсталляции унитаза, оптимизированная электрика из качественных материалов, контроль напряжения, функциональный доступ к системам подсветки, установлен кухонный гарнитур из премиум материалов и фурнитуры с выведенной под технику электрикой, межкомнатные двери целостное эмалированное полотно, три готовых вывода под сплитсистемы. дополнительно закуплены, но не установлены потолочные плинтусы на всю площадь.на расстоянии 25 км от жк смородина находятся крупные супермаркеты, спортивный комплекс, банки, кафе, детсад и школа. за 15 минут можно добраться до тц oz mall. дорога до центральной части краснодара занимает 2030 минут. транспорт представлен автобусами. по расположенной рядом трассе легко добраться к морю или в аэропорт.экологически чистый новознаменский район успешно развивается и активно застраивается. в ближайшее время планируется строительство новых школьных и дошкольных учреждений, тц, магазинов и коммерческих объектов, бассейнов и т.д.
в продаже просторная двухкомнатная квартира с новым современным ремонтомремонт сделан на совесть, для себя потолки из oгнeупoрных мaтериалoв, датчики пpoтeчки в мокрых зoнах кухня, вaннaя комнaтa, сиcтeма oчиcтки вoды на гвс и хbс, дaтчики давления в кухне и санузле, готовый вывод под бойлер канализация и электричество, функциональный сквозной доступ к инсталляции унитаза, оптимизированная электрика из качественных материалов, контроль напряжения, функциональный доступ к системам подсветки, установлен кухонный гарнитур из премиум материалов и фурнитуры с выведенной под технику электрикой, межкомнатные двери целостное эмалированное полотно, три готовых вывода под сплитсистемы. дополнительно закуплены, но не установлены потолочные плинтусы на всю площадь.на расстоянии 25 км от жк смородина находятся крупные супермаркеты, спортивный комплекс, банки, кафе, детсад и школа. за 15 минут можно добраться до тц oz mall. дорога до центральной части краснодара занимает 2030 минут. транспорт представлен автобусами. по расположенной рядом трассе легко добраться к морю или в аэропорт.экологически чистый новознаменский район успешно развивается и активно застраивается. в ближайшее время планируется строительство новых школьных и дошкольных учреждений, тц, магазинов и коммерческих объектов, бассейнов и т.д.
Похожие двухкомнатные квартиры в районе





