Продается двухкомнатная квартира
бул. Гагарина 72, район Мотовилихинский (Городские Горки мкр.)
09.03.2026














Стоимость
13 850 280 ₽
142 786 рублей за м2
142 786 рублей за м2
Количество комнат
2 комн
Общая площадь
97 м²
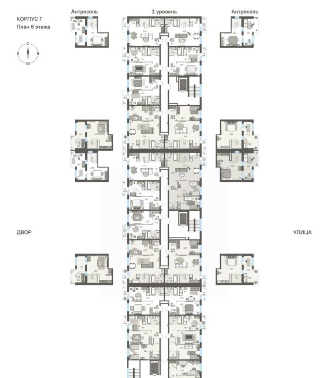
Этаж
6 из 6
Несуществующий объект, неправильная информация? - обязательно сообщите.
Дополнительная информация:
способы покупки рассрочка 0 до конца строительства без удорожания первоначальный взнос 30, остальная сумма выплачивается равными платежами до 21.05.2026г. не суммируется с другими акциями. мебель, техника или кухня в подарок семейная и it ипотека от 3,6 ипотека для всех от 10,5коллекционная двухэтажная квартира с всесезонной застекленной террасой, в которую нельзя не влюбиться. два этажа ощутите пространство и комфорт, которые предоставляет двухуровневая планировка. собственная терраса наслаждайтесь своей застекленной всесезонной террасой, где можно проводить время в любое время года свободная планировка адаптируйте пространство под свои нужды. уютное соседство всего 5 квартир на этаже создают атмосферу уюта и спокойствия.в террасах жк грёнхольм тепло не только летом.мы позаботились о том, чтобы вам было уютно в любое время года. всё благодаря продуманной комплектации и инженерным решениям, которые не просто звучат потехничному, а работают на ваш комфорт профиль vektor 70надёжный, тёплый, устойчивый к ветрам и температурам. отлично сохраняет тепло и защищает от капризов погоды. фурнитура maco multimatic 3 классавстрийская надёжность в каждой ручке. это безопасность, герметичность и плавный ход створок. работает мягко, как скандинавская зима. двухкамерный стеклопакетне просто окно в мир, а настоящий тепловой щит. энергоэффективный, не даёт холоду шанса. вывод коммуникаций под санузелна втором уровне предусмотрены коммуникации для установки санузла. идеально, если планируете сделать на крыше полноценную приватную зону отдыха или кабинет с личным удобством.грёнхольм расположился в зеленом микрорайоне городские горки на бульваре гагарина, 72. до остановки общественного транспорта авторадио всего 200 метров, а близость таких магистралей, как южная дамба, бульвар гагарина и улица старцева позволят сэкономить время на передвижение по городу.рядом есть всё для образования и интеллектуального развития в любом возрасте неподалеку от грёнхольма расположены детские сады, школы, колледжи и высшие учебные заведения. в том числе школа дизайна точка и ниу вшэ.грёнхольм это высота домов 6 этажей до центральных улиц 5 минут на машине рядом река егошиха и много деревьев аллеи между секциями, скрытые от машин, для пеших прогулок стильная холлы и колясочные в каждом подъезде терраса на крыше для резидентов комплекса свой фонтан во дворе индивидуальные кладовые на 1 этаже от 326 тыс.р.скидки не суммируются. подробности в отделе продаж.для поиска квартира с террасой, двухэтажная квартира, квартира с антресолью
способы покупки рассрочка 0 до конца строительства без удорожания первоначальный взнос 30, остальная сумма выплачивается равными платежами до 21.05.2026г. не суммируется с другими акциями. мебель, техника или кухня в подарок семейная и it ипотека от 3,6 ипотека для всех от 10,5коллекционная двухэтажная квартира с всесезонной застекленной террасой, в которую нельзя не влюбиться. два этажа ощутите пространство и комфорт, которые предоставляет двухуровневая планировка. собственная терраса наслаждайтесь своей застекленной всесезонной террасой, где можно проводить время в любое время года свободная планировка адаптируйте пространство под свои нужды. уютное соседство всего 5 квартир на этаже создают атмосферу уюта и спокойствия.в террасах жк грёнхольм тепло не только летом.мы позаботились о том, чтобы вам было уютно в любое время года. всё благодаря продуманной комплектации и инженерным решениям, которые не просто звучат потехничному, а работают на ваш комфорт профиль vektor 70надёжный, тёплый, устойчивый к ветрам и температурам. отлично сохраняет тепло и защищает от капризов погоды. фурнитура maco multimatic 3 классавстрийская надёжность в каждой ручке. это безопасность, герметичность и плавный ход створок. работает мягко, как скандинавская зима. двухкамерный стеклопакетне просто окно в мир, а настоящий тепловой щит. энергоэффективный, не даёт холоду шанса. вывод коммуникаций под санузелна втором уровне предусмотрены коммуникации для установки санузла. идеально, если планируете сделать на крыше полноценную приватную зону отдыха или кабинет с личным удобством.грёнхольм расположился в зеленом микрорайоне городские горки на бульваре гагарина, 72. до остановки общественного транспорта авторадио всего 200 метров, а близость таких магистралей, как южная дамба, бульвар гагарина и улица старцева позволят сэкономить время на передвижение по городу.рядом есть всё для образования и интеллектуального развития в любом возрасте неподалеку от грёнхольма расположены детские сады, школы, колледжи и высшие учебные заведения. в том числе школа дизайна точка и ниу вшэ.грёнхольм это высота домов 6 этажей до центральных улиц 5 минут на машине рядом река егошиха и много деревьев аллеи между секциями, скрытые от машин, для пеших прогулок стильная холлы и колясочные в каждом подъезде терраса на крыше для резидентов комплекса свой фонтан во дворе индивидуальные кладовые на 1 этаже от 326 тыс.р.скидки не суммируются. подробности в отделе продаж.для поиска квартира с террасой, двухэтажная квартира, квартира с антресолью
Похожие двухкомнатные квартиры в районе Мотовилихинский





