Продается однокомнатная квартира
Композитора Глинки 4, район Индустриальный (Нагорный мкр.)
06.04.2026





























Стоимость
3 590 000 ₽
97 027 рублей за м2
97 027 рублей за м2
Количество комнат
1 комн
Общая площадь
37 м²
Этаж
1 из 5
Несуществующий объект, неправильная информация? - обязательно сообщите.
Дополнительная информация:
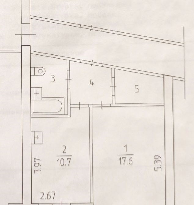
вы влюбитесь в эту квартиру с первого шагаищете однушку, где не будет тесно забудьте про стандартные клетушкив продаже просторная 1комнатная квартира 37,2 м², которая удивит вас размерами. главные козыри комната 17,6 м² свободного пространства. кухня мечты 10,7 м² здесь поместится и большой стол, и зона отдыха. никакого ремонта заезжайте и живите счастливо.что внутримы сделали всё за вас заменили проводку медь, поставили натяжные потолки с подсветкой. на полу качественный ламинат в комнате и кварц виниловый ламинат на кухне, в ванной дорогая плитка, в прихожей практичный керамогранит.входные и межкомнатные двери уже новые. окна стеклопакеты везде кухня, комната, лоджия. бонус подарок от продавцаоставляют вам кухонный гарнитур и вместительный шкафкупе. а еще есть огромная кладовая ваша личная система хранениядля семьи с детьмирядом всё для жизни детский сад 35, школа 136, поликлиника, магазины и остановки всё в шаговой доступности. и главное локация для душикогда устали от города выходите из дома и через 5 минут вы в новом пермском зоопарке отличный повод гулять с детьми каждый выходной. в черняевском лесу ваша личная зона тишины, где можно уединиться, слушать птиц и дышать свежим воздухом.здесь не нужно ехать за город, чтобы отдохнуть. всё лучшее под окнами и городской комфорт садик, школа, магазины, и природа для перезагрузки.такую квартиру быстро разберут. успейте влюбиться приглашаю на просмотр убедитесь лично, что такая квартира редкость.напишите в комментариях или в личку, покажу в удобное время.
вы влюбитесь в эту квартиру с первого шагаищете однушку, где не будет тесно забудьте про стандартные клетушкив продаже просторная 1комнатная квартира 37,2 м², которая удивит вас размерами. главные козыри комната 17,6 м² свободного пространства. кухня мечты 10,7 м² здесь поместится и большой стол, и зона отдыха. никакого ремонта заезжайте и живите счастливо.что внутримы сделали всё за вас заменили проводку медь, поставили натяжные потолки с подсветкой. на полу качественный ламинат в комнате и кварц виниловый ламинат на кухне, в ванной дорогая плитка, в прихожей практичный керамогранит.входные и межкомнатные двери уже новые. окна стеклопакеты везде кухня, комната, лоджия. бонус подарок от продавцаоставляют вам кухонный гарнитур и вместительный шкафкупе. а еще есть огромная кладовая ваша личная система хранениядля семьи с детьмирядом всё для жизни детский сад 35, школа 136, поликлиника, магазины и остановки всё в шаговой доступности. и главное локация для душикогда устали от города выходите из дома и через 5 минут вы в новом пермском зоопарке отличный повод гулять с детьми каждый выходной. в черняевском лесу ваша личная зона тишины, где можно уединиться, слушать птиц и дышать свежим воздухом.здесь не нужно ехать за город, чтобы отдохнуть. всё лучшее под окнами и городской комфорт садик, школа, магазины, и природа для перезагрузки.такую квартиру быстро разберут. успейте влюбиться приглашаю на просмотр убедитесь лично, что такая квартира редкость.напишите в комментариях или в личку, покажу в удобное время.
Похожие однокомнатные квартиры в районе Индустриальный





