Продается двухкомнатная квартира
Артемовская 20, район Октябрьский
17.03.2026























Стоимость
13 200 000 ₽
227 586 рублей за м2
227 586 рублей за м2
Количество комнат
2 комн
Общая площадь
58 м²
Этаж
18 из 24
Несуществующий объект, неправильная информация? - обязательно сообщите.
Дополнительная информация:
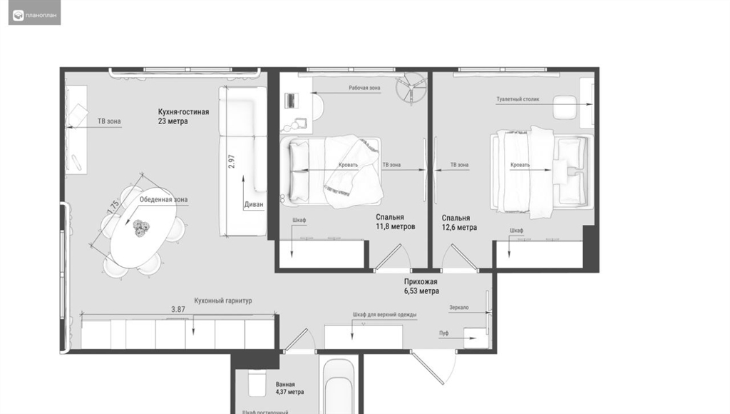
в продаже евротрешка квартира с дизайнерским ремонтом в квартире никто не проживал.просторная кухнягостиная 23 м², спальня 12,6 м² и детская 11,8 м². удобная и продуманная планировка для семьи.дом современной архитектуры расположен в географическом центре города. есть подземный паркинг, куда можно спуститься на лифте прямо на 1 и 2 этажи. установлены датчики дыма и противопожарные двери безопасность продумана до мелочей в отличие от многих других домов. закрытая дворовая территория без машин.отличная транспортная доступность район улиц гагарина, аврора, революционная и дыбенко.в квартире выполнен качественный дизайнерский ремонт. кухонный гарнитур длиной 4,5 метра со встроенной техникой. в прихожей и спальне установлены вместительные шкафы.на полу кварцвинил, стены оклеены холстом и окрашены моющейся краской. в санузле современный керамогранит, тумба 1,2 метра с большим зеркалом. дизайнерский диван и всё, что представлено на фото, остаётся новым владельцам.на этаже всего 4 квартиры, соседи уже проживают.
в продаже евротрешка квартира с дизайнерским ремонтом в квартире никто не проживал.просторная кухнягостиная 23 м², спальня 12,6 м² и детская 11,8 м². удобная и продуманная планировка для семьи.дом современной архитектуры расположен в географическом центре города. есть подземный паркинг, куда можно спуститься на лифте прямо на 1 и 2 этажи. установлены датчики дыма и противопожарные двери безопасность продумана до мелочей в отличие от многих других домов. закрытая дворовая территория без машин.отличная транспортная доступность район улиц гагарина, аврора, революционная и дыбенко.в квартире выполнен качественный дизайнерский ремонт. кухонный гарнитур длиной 4,5 метра со встроенной техникой. в прихожей и спальне установлены вместительные шкафы.на полу кварцвинил, стены оклеены холстом и окрашены моющейся краской. в санузле современный керамогранит, тумба 1,2 метра с большим зеркалом. дизайнерский диван и всё, что представлено на фото, остаётся новым владельцам.на этаже всего 4 квартиры, соседи уже проживают.
Похожие двухкомнатные квартиры в районе Октябрьский





