Продается однокомнатная квартира
Имени Александра Кривохижина 6, район Заводской
14.01.2026






Стоимость
3 700 000 ₽
108 823 рублей за м2
108 823 рублей за м2
Количество комнат
1 комн
Общая площадь
34 м²
Этаж
6 из 16
Несуществующий объект, неправильная информация? - обязательно сообщите.
Дополнительная информация:
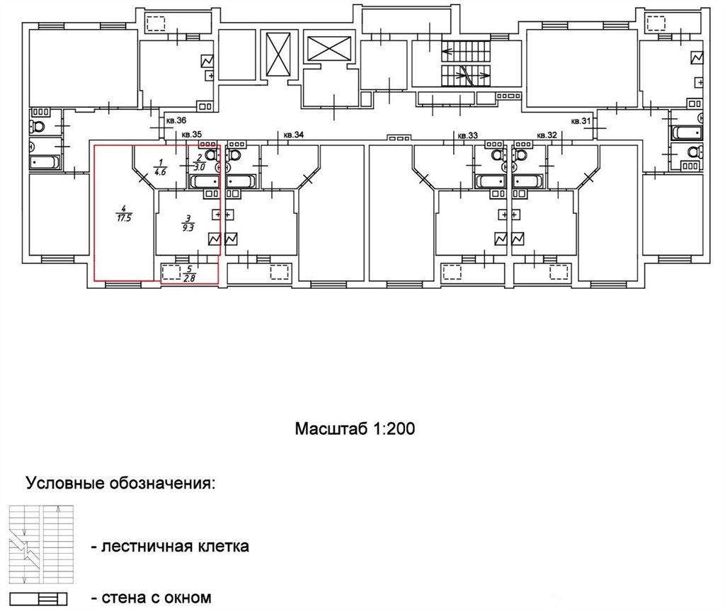
продаётся квартира без внутренней отделки в жк авиатор4 с видом на волгу дом сдан. в квартире никто не проживает и не зарегистрирован. в квартире выполнена внутренняя подготовка смонтированы все инженерные системы внутренние сети отопления, водоснабжения подведены до санузла, электроснабжения до вводного щитка с узо установлены современные пластиковые окна и балконные двери с двухкамерными стеклопакетами. у окон открываются обе створки. входная металлическая дверь.квартира площадью 34,4 м² на 6 этаже, включает кухню 9,3 м² лоджию 2,8 м² ванную 3 м².рядом находятся рынок кольцо тц оранжевый гимназия 34 и детский сад 130 бассейн ныряем для малышей до 7 лет мук гдкнт. звоните прямо сейчас, чтобы узнать больше и договориться о просмотре
продаётся квартира без внутренней отделки в жк авиатор4 с видом на волгу дом сдан. в квартире никто не проживает и не зарегистрирован. в квартире выполнена внутренняя подготовка смонтированы все инженерные системы внутренние сети отопления, водоснабжения подведены до санузла, электроснабжения до вводного щитка с узо установлены современные пластиковые окна и балконные двери с двухкамерными стеклопакетами. у окон открываются обе створки. входная металлическая дверь.квартира площадью 34,4 м² на 6 этаже, включает кухню 9,3 м² лоджию 2,8 м² ванную 3 м².рядом находятся рынок кольцо тц оранжевый гимназия 34 и детский сад 130 бассейн ныряем для малышей до 7 лет мук гдкнт. звоните прямо сейчас, чтобы узнать больше и договориться о просмотре
Похожие однокомнатные квартиры в районе Заводской





