Продается двухкомнатная квартира
Имени И.А. Слонова 72, район Фрунзенский
16.02.2026






















Стоимость
3 599 900 ₽
83 718 рублей за м2
83 718 рублей за м2
Количество комнат
2 комн
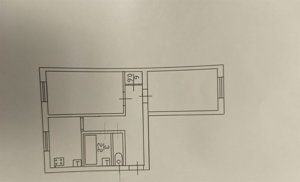
Общая площадь
43 м²
Этаж
1 из 5
Несуществующий объект, неправильная информация? - обязательно сообщите.
Дополнительная информация:
продам 2х комнатную квартиру в кирпичном доме в центральной части саратова .площадь квартиры 43 метра, две изолированные комнаты на разные стороны распашонкав квартире сделан косметический ремонт ,все коммуникации и электрика заменены. квартира оченьочень теплая ,не смотря что первый этаж , батареи всегда находятся в полузакрытом положении летом ук поменяли все трубы в подвале дома.новым владельцам остаётся кухонный гарнитур со встроенной техникой.также частично остаётся мебель места хранения и спальные места.санузел раздельный,все фото соответствуют действительности.квартира расположена в районе с развитой инфраструктурой и отличной транспортной доступностью.в шаговой доступности тц город, продуктовые и хозяйственные магазины,круглосуточные аптеки, ждавто вокзал с транспортной развязкой в любую часть города,спортивные и тренажёрные залы, современный аквапарк.также в пешей доступности несколько детских садов один д.сад в конце дома , школа , также рядом институты колледжи,и другие образовательные и развивающие учреждения.квартира полностью готова к заселению и проживанию,2 взрослых собственника, более 10 лет в собственности , рассмотрим все варианты оплаты.
продам 2х комнатную квартиру в кирпичном доме в центральной части саратова .площадь квартиры 43 метра, две изолированные комнаты на разные стороны распашонкав квартире сделан косметический ремонт ,все коммуникации и электрика заменены. квартира оченьочень теплая ,не смотря что первый этаж , батареи всегда находятся в полузакрытом положении летом ук поменяли все трубы в подвале дома.новым владельцам остаётся кухонный гарнитур со встроенной техникой.также частично остаётся мебель места хранения и спальные места.санузел раздельный,все фото соответствуют действительности.квартира расположена в районе с развитой инфраструктурой и отличной транспортной доступностью.в шаговой доступности тц город, продуктовые и хозяйственные магазины,круглосуточные аптеки, ждавто вокзал с транспортной развязкой в любую часть города,спортивные и тренажёрные залы, современный аквапарк.также в пешей доступности несколько детских садов один д.сад в конце дома , школа , также рядом институты колледжи,и другие образовательные и развивающие учреждения.квартира полностью готова к заселению и проживанию,2 взрослых собственника, более 10 лет в собственности , рассмотрим все варианты оплаты.
Похожие двухкомнатные квартиры в районе Фрунзенский





