Продается двухкомнатная квартира
Осипенко 41, район
12.02.2026








Стоимость
4 780 000 ₽
106 222 рублей за м2
106 222 рублей за м2
Количество комнат
2 комн
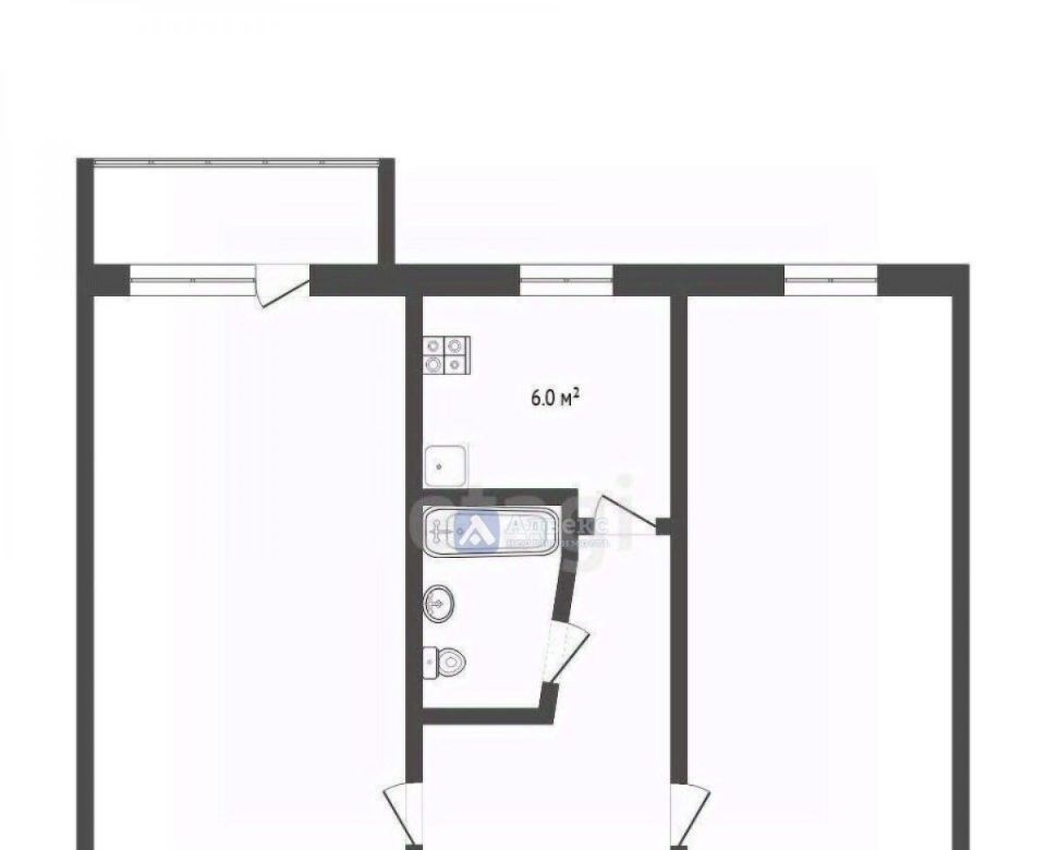
Общая площадь
45 м²
Этаж
3 из 5
Несуществующий объект, неправильная информация? - обязательно сообщите.
Дополнительная информация:
продается уютная двухкомнатная квартира в кирпичном доме, построенном в 1969 году. общая площадь составляет 45 кв. м, жилая площадь 28 кв. м, кухня 6.5 кв. м. квартира расположена на 3 этаже 5этажного дома, окна выходят на улицу, поэтому в квартире всегда светло и просторно, уютный балкон. высота потолков 2.5 метра, что создает ощущение дополнительного пространства.квартира с косметическим ремонтом, что позволяет въехать и жить сразу.санузел раздельный.. планировка позволяет комфортно разместить мебель и технику.дом находится в хорошем состоянии, так как построен из кирпича, который славится своей долговечностью и теплоизоляционными свойствами. во дворе предусмотрены парковочные места, поэтому вы всегда найдете, где оставить автомобиль.район обладает развитой инфраструктурой рядом находятся школы, детские сады, клиники и магазины, поэтому все необходимые услуги и товары будут у вас под рукой. хорошая транспортная доступность позволяет быстро добраться до любой точки города.номер объекта 154963222044
продается уютная двухкомнатная квартира в кирпичном доме, построенном в 1969 году. общая площадь составляет 45 кв. м, жилая площадь 28 кв. м, кухня 6.5 кв. м. квартира расположена на 3 этаже 5этажного дома, окна выходят на улицу, поэтому в квартире всегда светло и просторно, уютный балкон. высота потолков 2.5 метра, что создает ощущение дополнительного пространства.квартира с косметическим ремонтом, что позволяет въехать и жить сразу.санузел раздельный.. планировка позволяет комфортно разместить мебель и технику.дом находится в хорошем состоянии, так как построен из кирпича, который славится своей долговечностью и теплоизоляционными свойствами. во дворе предусмотрены парковочные места, поэтому вы всегда найдете, где оставить автомобиль.район обладает развитой инфраструктурой рядом находятся школы, детские сады, клиники и магазины, поэтому все необходимые услуги и товары будут у вас под рукой. хорошая транспортная доступность позволяет быстро добраться до любой точки города.номер объекта 154963222044
Похожие двухкомнатные квартиры в районе





