Сортировка
8 800 000 ₽
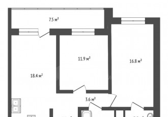
квартира в жк маэстро комфорт, стиль и удобство рядом с центром тюменипродаётся 2комнатная квартира площадью 69 м² в новом жк маэстро, 5й заречный район. удачное расположение всего 5 минут до центра тюмени. дом монолитный, комфорткласса, от...









