Продается однокомнатная квартира
Дядьковская 8, район Фрунзенский (Сокол мкр.)
24.03.2026
















Стоимость
5 450 000 ₽
147 297 рублей за м2
147 297 рублей за м2
Количество комнат
1 комн
Общая площадь
37 м²
Этаж
3 из 9
Несуществующий объект, неправильная информация? - обязательно сообщите.
Дополнительная информация:
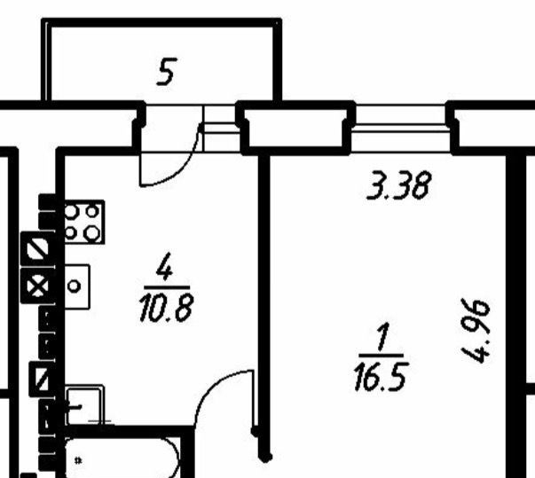
предлагаем в продажу однокомнатную квартиру во фрунзенском районе сокол. дом с индивидуальным газовым отоплением. огороженная территорияпродается однокомнатная квартира на 3 этаже 9 этажного жилого дома.квартира расположена ул. дядьковская д. 8о доме дом 2021 года постройки дом кирпичный квартира неугловая 1 лифт сквозной грузовойпассажирский, шикарная входная группао квартире общая площадь квартиры 37,9 кв. м. кухня 10,8 кв.м., комната 16,5 кв.м., су совмещен, квартира очень теплая, большая прихожая, балкон застеклен.пол ламинат, натяжной потолокво всей квартире.инфраструктурарядом с домом остановки, магазины , школы, садики близость парка, остановка общественного транспортао сделке обременений нет .
предлагаем в продажу однокомнатную квартиру во фрунзенском районе сокол. дом с индивидуальным газовым отоплением. огороженная территорияпродается однокомнатная квартира на 3 этаже 9 этажного жилого дома.квартира расположена ул. дядьковская д. 8о доме дом 2021 года постройки дом кирпичный квартира неугловая 1 лифт сквозной грузовойпассажирский, шикарная входная группао квартире общая площадь квартиры 37,9 кв. м. кухня 10,8 кв.м., комната 16,5 кв.м., су совмещен, квартира очень теплая, большая прихожая, балкон застеклен.пол ламинат, натяжной потолокво всей квартире.инфраструктурарядом с домом остановки, магазины , школы, садики близость парка, остановка общественного транспортао сделке обременений нет .
Похожие однокомнатные квартиры в районе Фрунзенский





