Продается однокомнатная квартира
Карпинского 112А, район Индустриальный
01.04.2026

Стоимость
4 990 000 ₽
113 409 рублей за м2
113 409 рублей за м2
Количество комнат
1 комн
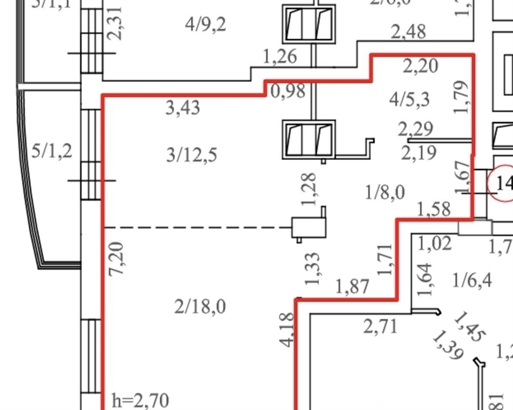
Общая площадь
44 м²
Этаж
3 из 24
Несуществующий объект, неправильная информация? - обязательно сообщите.
Дополнительная информация:
продается однокомнатная квартира на третьем этаже нового монолитного дома, построенного в 2024 году.по планировке есть возможность организации евродвушки. 3 окна, много света.застеклённая лоджия. из окон открывается вид на солнечную сторону, что обеспечивает хорошее естественное освещение.в доме предусмотрены четыре пассажирских и два грузовых лифта, а также консьерж. для удобства жильцов во дворе оборудована спортивная площадка, а парковка находится за шлагбаумом.квартира с предчистовой отделкой, что даёт возможность оформить её по своему вкусу.санузел совмещённый.никто не зарегистрирован.быстрый выход на сделку. один взрослый собственник. без обременений.
продается однокомнатная квартира на третьем этаже нового монолитного дома, построенного в 2024 году.по планировке есть возможность организации евродвушки. 3 окна, много света.застеклённая лоджия. из окон открывается вид на солнечную сторону, что обеспечивает хорошее естественное освещение.в доме предусмотрены четыре пассажирских и два грузовых лифта, а также консьерж. для удобства жильцов во дворе оборудована спортивная площадка, а парковка находится за шлагбаумом.квартира с предчистовой отделкой, что даёт возможность оформить её по своему вкусу.санузел совмещённый.никто не зарегистрирован.быстрый выход на сделку. один взрослый собственник. без обременений.
Похожие однокомнатные квартиры в районе Индустриальный





