Продается однокомнатная квартира
Юрша 9, район Мотовилихинский (Садовый мкр.)
03.03.2026










Стоимость
4 300 000 ₽
126 470 рублей за м2
126 470 рублей за м2
Количество комнат
1 комн
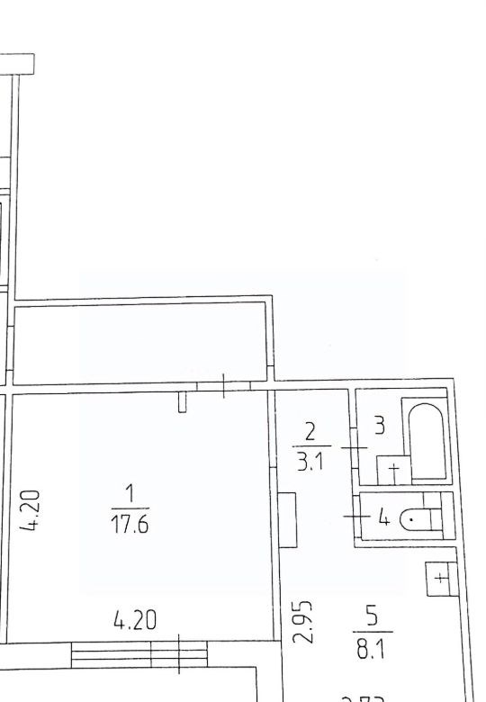
Общая площадь
34 м²
Этаж
5 из 9
Несуществующий объект, неправильная информация? - обязательно сообщите.
Дополнительная информация:
отличное предложение к покупке предлагается однокомнатная квартира.идеальный вариант для любителей жить в хорошем спальном микрорайоне и недалеко от центра города. вам понравится инфраструктура района вблизи дома сквер журналистов, сад соловьев, сквер по улице гайдара, тц карнавал, большое количество магазинов, кафе, кофейни, пекарни. в шаговой доступности школы и детские сады, остановки общественного транспорта в 5ти минутах ходьбы.планировка общей площадью 34 кв.м. кухня 8,1 кв.м, комната 17,6 кв. состояние квартиры косметический ремонт.помощь в одобрении ипотеки оперативный показ звоните 1137448
отличное предложение к покупке предлагается однокомнатная квартира.идеальный вариант для любителей жить в хорошем спальном микрорайоне и недалеко от центра города. вам понравится инфраструктура района вблизи дома сквер журналистов, сад соловьев, сквер по улице гайдара, тц карнавал, большое количество магазинов, кафе, кофейни, пекарни. в шаговой доступности школы и детские сады, остановки общественного транспорта в 5ти минутах ходьбы.планировка общей площадью 34 кв.м. кухня 8,1 кв.м, комната 17,6 кв. состояние квартиры косметический ремонт.помощь в одобрении ипотеки оперативный показ звоните 1137448
Похожие однокомнатные квартиры в районе Мотовилихинский





