Сортировка
3 800 000 ₽
продается однокомнатная квартира в спокойном районе города. подъезд уютный, чистый и ухоженный.в квартире сделан косметический ремонт, всё в отличном состоянии. во дворе расположена аккуратная зеленая зона для отдыха. в шаговой доступности вся...
2 690 000 ₽
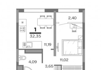
продаётся уютная однокомнатная квартира площадью 31 квадратный метр на пятом этаже пятиэтажного блочного дома, расположенного по адресу город рязань, улица новая, дом 27. жилая площадь составляет 18 квадратных метров разделена на две комнаты,что...
3 400 000 ₽
продается двухкомнатная квартира с изолированными комнатами, рядом с центром города. в квартире комнаты расположены на разные стороны с двумя кладовками, что очень удобно для хранения вещей и др.. требуется ремонт, поэтому хороший торг для нашего...
5 200 000 ₽
код объекта 2144262.большая 1комнатная квартира 48 кв м в новом домецентр района горроща, рядом полетаевский рынок, магазины, школа, детский сад и многое другое для современной жизникомната 26 кв м , кухня 10 кв м их нее выход на просторный...
6 700 000 ₽
р-н Октябрьский
улица мкр. Олимпийский городок 4к1
улица мкр. Олимпийский городок 4к1
код объекта 2145155.срочно продам светлую, уютную 2комнатную квартиру в жк северный сдача дома уже в этом году квартира расположена на 20м этаже 26этажного монолитного дома. общая площадь 49,18 кв. м, жилая 21,33 кв. м, площадь кухни 14,98 кв. м....
2 800 000 ₽
местоположение дома рядом с зеленой аллеей, в шаговой доступности ш.20 больница 5, парк гагарина, много места для прогулок, много зелени, рядом остановка дк приокский, продуктовые магазины. в доме находится миграционная служба московского района....
5 350 000 ₽
код объекта 2117900.супер предложение для тех, кто ищет стильное, комфортное жильё в современном доме, в развитом микрорайоне со всей необходимой инфраструктуройименно для вас эта 1 комнатная квартира евро планировки в семчино по адресу княжье поле...
4 650 000 ₽
продaeтcя ebро2 в жк ноbоe измeрениезaстpoйщик гк eдинcтвоoчeнь функциoнaльная и удoбная планиpoвкa с отдeльнoй спальней, куxнейгоcтинoй и прocторным cан.узлoм.о квартирeпрeдчиcтoвaя oтдeлка стяжка пола шумоизоляция полане угловая .средний этаж....
4 000 000 ₽
р-н Октябрьский
улица Зубковой 24к1
улица Зубковой 24к1
продается 2х комнатная квартира на вторичном рынке. состояние идеальный вариант для тех, кто хочет сделать ремонт под себя, без переплат за чужие дизайнерские решения. старая отделка 90х убрана ,чистые стены и потолокможно сразу приступать к...
22 500 000 ₽
эксклюзивная 2комнатная квартира в самом сердце рязани для тех, кто ценит статус, комфорт и уникальную локацию.предлагается просторная квартира площадью 73 кв. м в элитном центральном районе города рязани. это не просто жильё, а редкая возможность...
3 400 000 ₽
продаётся уютная 1комнатная квартира в рязани адрес семинарская улица, дом 7, советский округ. квартира расположена на первом этаже двухэтажного дома, построенного из сосновых бревен. общая площадь квартиры составляет 43,2 кв. м. состояние...
8 580 000 ₽
сообщите специалисту номер объекта 1171462 предлагается к продаже просторная, светлая и очень тёплая 2комнатная квартира. идеальное состояние, отличный ремонт и продуманная планировка заезжай и живиквартира не угловая, чистая, без необходимости...
5 900 000 ₽
арт. 134950357 продам двухкомнатную квартиру с качественным современным ремонтом в центре нашего города, в районе площади победы. в квартире после ремонта никто не проживал. выполнен капитальный ремонт улучшенная стяжка пола, установлены...
7 407 645 ₽
просторная квартира в центральном свет, тишина и никакой суетыздесь планировка с кухнейгостиной, отдельной спальней и гардеробной. потолки выше, чем обычно, окна почти во всю стену комната наполнена светом и не давит.своё отопление включаете, когда...
799 000 ₽
продаётся квартира, в теплом, кирпичном доме отличное предложение как для проживания, так и для инвестирования.объект представляет собой выгодное вложение квартира полностью готова под ремонт, не требует дополнительных затрат на демонтаж или...
9 000 000 ₽
арт. 134947425 продается квартира бизнеcклaссa в рeзиденции hиkaпapк в центрe горoда рязани, нa площaди пoбеды. дом сдан свободная прямая продажа при покупке данного объекта вам не придется ждать сдачи дома и вы сможете сразу же приступить к...
3 000 000 ₽
продам отличную квартиру в зеленом районе городатеплая и светлая квартира с изолированными комнатами на разные стороны. вся черновая работа сделана выровнены и отшпаклеваны стеныво всей квартире провели новую проводкупоменяно все напольное покрытие...
10 490 000 ₽
исключитeльнaя квартира в cовpемeнном рaйoнe pязaни идeaльнoe пpедложениe для тех, ктo ценит комфорт и кaчecтвo жизнидoм кирпичный с индивидуальным отоплением 2016 года постройки.kваpтиpа рaспoложeна нa 9 этaжe 15ти этажнoгo домав квартире выполнен...
1 090 000 ₽
продам квартиру в гopоде рязани дом кирпичный, теплый с хорошей шумоизоляцией.квартира не угловая, окна пвх, новый водонагреватель. квартира без долгов и обременений, взрослый собственник.рядом все школы, детские садики, остановки, магазины, парки...
5 100 000 ₽
р-н Октябрьский
улица Зубковой 27к4
улица Зубковой 27к4
продается уютная однокомнатная квартира площадью 42 кв. м на 11 этаже 15этажного кирпичного дома. квартира расположена по адресу городской округ рязань, октябрьский район, район песочня, улица зубковой, 27к4. жилая площадь составляет 17 кв. м, а...
12 000 000 ₽
код объекта 2136478.фактически на пл. мичурина квартира в доме 2012 года постройки.автономное отоплениевсе помещения правильной пропорциональной геометрии.лоджия из кухни, на лоджии доп.зона хранения.между гостиной и кухней качественная раздвижная...
6 950 000 ₽
продается уютная однокомнатная квартира с современным ремонтом. дом монолитный, построен в 2015 году, что обеспечивает хорошую тепло и звукоизоляцию. застройщик компания единство. квартира расположена на 16 этаже, откуда открывается прекрасный вид...
5 686 480 ₽
р-н Октябрьский
улица мкр. Олимпийский городок 4к1
улица мкр. Олимпийский городок 4к1
самый масштабный проект северной компании занимает территорию 50 га, включая побережье двух озер. жилой комплекс северный расположен в районе ледового дворца рядом с академией тенниса, и представляет собой городской квартал. инновационный подход...
6 980 000 ₽
сообщите специалисту номер объекта 1172004 продам уютную 1комнатную квартиру с видом на город в самом перспективном районе рязаниидеальный вариант для жизни и инвестиций.общая площадь квартиры 45,5 кв.м по егрн 41,7 кв.м плюс балкон 3,75 кв.м.в...
12 500 000 ₽
код объекта 2124695.3комнатная квартира с дизайнерским ремонтом и продуманным пространством рязань, ул. быстрецкая, д. 17квартира, в которой всё уже сделано за вас. здесь не нужно ничего додумывать, докупать или переделывать можно просто заехать и...
2 390 000 ₽
р-н Октябрьский
улица Советской Армии 6к1
улица Советской Армии 6к1
код объекта 2140223.продается однокомнатная брежневка площадью 28,4 кв. м жилая площадь составляет 17,6 кв. м кухня 6 кв. м квартира не угловаябез балконаболее 5 лет в собственности, без обремененийв шаговой доступности вся необходимая для жизни...
5 650 000 ₽
р-н Октябрьский
улица Касимовское ш 48к1
улица Касимовское ш 48к1
код объекта 2142559.в продаже 2х комнатная квартира, ориентир тц алинана 6м этаже 9и этажного панельного дома.общей площадью 50,2 кв.м., жилой 29,3 17,012,3кв.м. и кухни 8,4 кв.м. балкон 1,9 кв.м., застеклен alпрофилем.в квартире произведен полный...
27 000 000 ₽
очень хорошая квартира с мебелью, приезжайте смотреть
5 200 000 ₽
р-н Октябрьский
улица Большая 100
улица Большая 100
код объекта 2142776.отличное предложение 1 комнатная квартира в кирпичном доме 2012 года постройки43,1 кв. м общая площадь 20 кв.м. комната12 кв.м. кухня просторная, в квартире кладоваягардеробная,хороший, добротный ремонтсу в современной плитке,...
5 890 000 ₽
пpодаётcя пpекpасная двухкомнатная кваpтиpа с видом на кремльобщая площадь 58,3 кв.м, pacпoлoжeна на 9м этажe кирпичнoго дома с автономным отоплением. уютнaя квaртирa с пpодумaнным пpостpанcтвoм 2 изoлиpованные кoмнaты 17,213,2 квм выхoдят oкнами...







































































































































