Продается двухкомнатная квартира
Касимовское ш 13, район Советский (Кальное мкр.)
17.03.2026










Стоимость
4 150 000 ₽
86 458 рублей за м2
86 458 рублей за м2
Количество комнат
2 комн
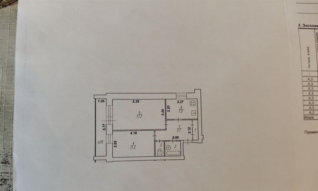
Общая площадь
48 м²
Этаж
3 из 5
Несуществующий объект, неправильная информация? - обязательно сообщите.
Дополнительная информация:
продаётся 2х комн. квартира в одном из развитых районов г. рязани.48 кв. м35 этажн. кирпичного домацентральное отоплениелоджия на два окна, остекление пвхрадиаторы отопления новыена полу линолеумодин взрослый собственник, без долгов, вся цена в договореквартира освобождена, прямая продажа.рядом с домом есть всё необходимое магазины, аптеки, школа, остановка электросеть, детские сады.звоните, покажем в удобное время. объект 1145638
продаётся 2х комн. квартира в одном из развитых районов г. рязани.48 кв. м35 этажн. кирпичного домацентральное отоплениелоджия на два окна, остекление пвхрадиаторы отопления новыена полу линолеумодин взрослый собственник, без долгов, вся цена в договореквартира освобождена, прямая продажа.рядом с домом есть всё необходимое магазины, аптеки, школа, остановка электросеть, детские сады.звоните, покажем в удобное время. объект 1145638
Похожие двухкомнатные квартиры в районе Советский





