Продается однокомнатная квартира
Днепропетровская ул 2Б, район Ленинский (Солнечный мкр.)
24.02.2026














Стоимость
3 790 000 ₽
99 736 рублей за м2
99 736 рублей за м2
Количество комнат
1 комн
Общая площадь
38 м²
Этаж
1 из 10
Несуществующий объект, неправильная информация? - обязательно сообщите.
Дополнительная информация:
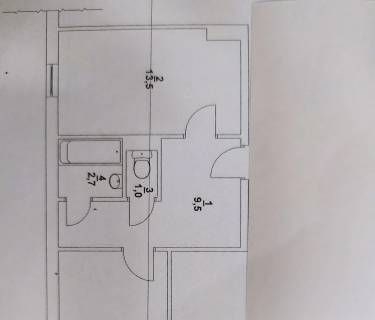
представляю вашему вниманию уютную однокомнатную квартиру с уникальной планировкой на 2 стороны с вместительной прихожей 9,5 метров и просторной кухней 13,5 метров. сам дом 2005 года постройки, расположен в тихом и спокойном месте, рядом с храмом георгия победоносца. дом утеплен по всему периметру. тамбур на 3 квартиры, на данный момент живут только в одной квартире. соседи по подъезду адекватные добропорядочные люди. дом удачно расположен относительно транспортной развязки, можно уехать в любой район города, рядом множество продуктовых и строительных супермаркетов, прям напротив глазная клиника, аптеки, школа в соседнем дворе. в комнатах и на лоджии теплый пол, натяжные потолки в комнате и санузле, санузел совмещенный в кафеле, лоджия утеплена и объединена с комнатой, под лоджией оборудовано место хранения хозинвентаря. в квартире новому собственнику остается мебель кухонный гарнитур, шкаф в прихожей, кондиционер.1 взрослый собственник, вся сумма в договоре. отличный вариант как для проживания, так и для сдачи в аренду. более полная информация по телефону. просмотр по договоренности практически в любое время. рассмотрим любой вид оплаты. оказываем помощь с одобрением ипотеки, работаем с любым видом сертификатов. звоните и записывайтесь на просмотр
представляю вашему вниманию уютную однокомнатную квартиру с уникальной планировкой на 2 стороны с вместительной прихожей 9,5 метров и просторной кухней 13,5 метров. сам дом 2005 года постройки, расположен в тихом и спокойном месте, рядом с храмом георгия победоносца. дом утеплен по всему периметру. тамбур на 3 квартиры, на данный момент живут только в одной квартире. соседи по подъезду адекватные добропорядочные люди. дом удачно расположен относительно транспортной развязки, можно уехать в любой район города, рядом множество продуктовых и строительных супермаркетов, прям напротив глазная клиника, аптеки, школа в соседнем дворе. в комнатах и на лоджии теплый пол, натяжные потолки в комнате и санузле, санузел совмещенный в кафеле, лоджия утеплена и объединена с комнатой, под лоджией оборудовано место хранения хозинвентаря. в квартире новому собственнику остается мебель кухонный гарнитур, шкаф в прихожей, кондиционер.1 взрослый собственник, вся сумма в договоре. отличный вариант как для проживания, так и для сдачи в аренду. более полная информация по телефону. просмотр по договоренности практически в любое время. рассмотрим любой вид оплаты. оказываем помощь с одобрением ипотеки, работаем с любым видом сертификатов. звоните и записывайтесь на просмотр
Похожие однокомнатные квартиры в районе Ленинский





