Продается двухкомнатная квартира
Дмитрия Купцова 4, район Ленинский
12.03.2026




















Стоимость
6 700 000 ₽
126 415 рублей за м2
126 415 рублей за м2
Количество комнат
2 комн
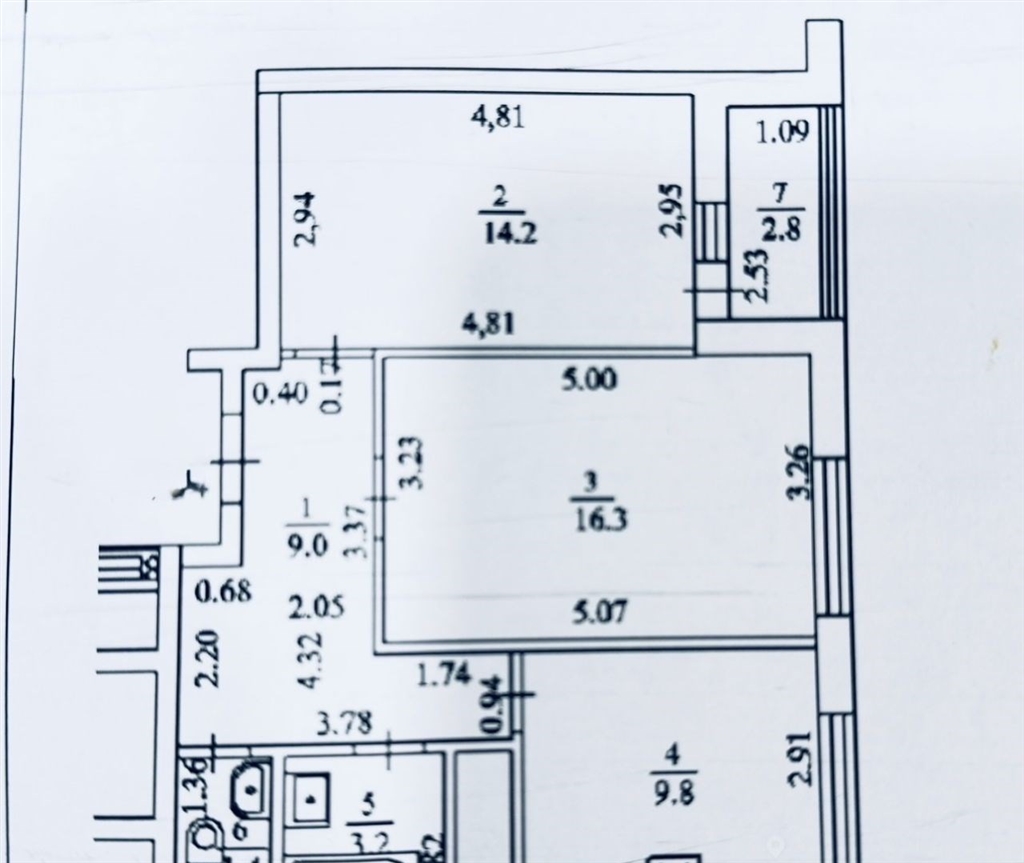
Общая площадь
53 м²
Этаж
24 из 25
Несуществующий объект, неправильная информация? - обязательно сообщите.
Дополнительная информация:
продается уютная и современная 2комнатная квартира с евроремонтом, расположенная на 24 этаже нового 25этажного дома, построенного в 2021 году. общая площадь квартиры составляет 53.9 кв. м, из которых жилая занимает 30.5 кв. м, а кухня 9.8 кв. м. высота потолков 2.7 метра, что добавляет пространства и света. окна выходят во двор, поэтому в квартире тихо и спокойно.квартира радует качественным евроремонтом и продуманной планировкой. здесь есть все необходимое для комфортной жизни просторная кухня, уютные комнаты и одна лоджия для отдыха. санузел совмещенный и оформлен в современном стиле. жилье не требует дополнительных вложений можно сразу заезжать и жить.дом ухоженный, оборудован двумя пассажирскими и одним грузовым лифтом, а также пандусом, что делает его доступным для всех категорий жильцов. наземная парковка обеспечивает удобство для автовладельцев. рядом с домом есть магазины, что делает повседневные покупки быстрыми и удобными.район с развитой инфраструктурой в шаговой доступности находятся детские сады, школы и поликлиники. отличная транспортная доступность позволяет быстро добраться до любой точки города. ближайшие остановки общественного транспорта находятся в нескольких минутах ходьбы.квартира продается по договору куплипродажи. возможна ипотека, что делает приобретение более доступным. юридически чистая сделка один взрослый собственник, без обременений и задолженностей.не упустите возможность стать владельцем этой замечательной квартиры записывайтесь на просмотр и оцените все ее преимущества лично. ждем вас
продается уютная и современная 2комнатная квартира с евроремонтом, расположенная на 24 этаже нового 25этажного дома, построенного в 2021 году. общая площадь квартиры составляет 53.9 кв. м, из которых жилая занимает 30.5 кв. м, а кухня 9.8 кв. м. высота потолков 2.7 метра, что добавляет пространства и света. окна выходят во двор, поэтому в квартире тихо и спокойно.квартира радует качественным евроремонтом и продуманной планировкой. здесь есть все необходимое для комфортной жизни просторная кухня, уютные комнаты и одна лоджия для отдыха. санузел совмещенный и оформлен в современном стиле. жилье не требует дополнительных вложений можно сразу заезжать и жить.дом ухоженный, оборудован двумя пассажирскими и одним грузовым лифтом, а также пандусом, что делает его доступным для всех категорий жильцов. наземная парковка обеспечивает удобство для автовладельцев. рядом с домом есть магазины, что делает повседневные покупки быстрыми и удобными.район с развитой инфраструктурой в шаговой доступности находятся детские сады, школы и поликлиники. отличная транспортная доступность позволяет быстро добраться до любой точки города. ближайшие остановки общественного транспорта находятся в нескольких минутах ходьбы.квартира продается по договору куплипродажи. возможна ипотека, что делает приобретение более доступным. юридически чистая сделка один взрослый собственник, без обременений и задолженностей.не упустите возможность стать владельцем этой замечательной квартиры записывайтесь на просмотр и оцените все ее преимущества лично. ждем вас
Похожие двухкомнатные квартиры в районе Ленинский





