Продается двухкомнатная квартира
Краснодонская 5, район Советский
18.03.2026
































Стоимость
11 300 000 ₽
221 568 рублей за м2
221 568 рублей за м2
Количество комнат
2 комн
Общая площадь
51 м²
Этаж
14 из 15
Несуществующий объект, неправильная информация? - обязательно сообщите.
Дополнительная информация:
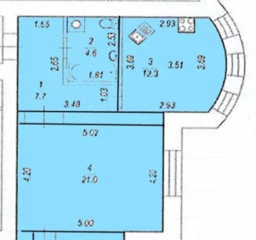
продаётся современная 2комнатная квартира 50,3 м2 в центре города в отличном ремонте и полностью готовая к жизни адрес краснодонская дом 5 напротив жк аристократ и парк им. якутова дом 2019 года, кирпичный дом, не свечка, что является преимуществом для комфортной жизни в городе. этаж 14 окна во двор с красивым видом на город. общая площадь 50,3 м2 кухня просторная 12.3 м2 комнаты смежные по 11 м2 и 9,6 м2 комфортное зонирование пространства .большой су 4,6 м2 с большой ванной. лоджия застеклена 4,7 м2 с ремонтом , можно сделать дополнительное пространство для отдыха.,ремонт современный, лаконичный в светлых оттенках. ремонт сделан с нуля начиная от стяжки и замены стеклопакетов от застройщика, электропроводки и чистовой отделки. стены полностью покрашены, полы во всех комнатах, кроме спальни керамогранит. кухня оснащена современной техникой вытяжка, духовой шкаф, микроволновая печь, посудомоечная машина. кухонный гарнитур из натурального дерева. качественная сантехника и стиральная машина, в спальне установлен кондиционер. в доме два лифта пассажирский и грузовой. двор закрыт шлагбаумом, во дворе есть подземный гараж. документы один взрослый собственник, полная стоимость в договоре.продажа в связи с расширением. рассмотрим обмен на 2ком или 3 ком с доплатой в новых домах в центре уфы. звоните показ по договоренности
продаётся современная 2комнатная квартира 50,3 м2 в центре города в отличном ремонте и полностью готовая к жизни адрес краснодонская дом 5 напротив жк аристократ и парк им. якутова дом 2019 года, кирпичный дом, не свечка, что является преимуществом для комфортной жизни в городе. этаж 14 окна во двор с красивым видом на город. общая площадь 50,3 м2 кухня просторная 12.3 м2 комнаты смежные по 11 м2 и 9,6 м2 комфортное зонирование пространства .большой су 4,6 м2 с большой ванной. лоджия застеклена 4,7 м2 с ремонтом , можно сделать дополнительное пространство для отдыха.,ремонт современный, лаконичный в светлых оттенках. ремонт сделан с нуля начиная от стяжки и замены стеклопакетов от застройщика, электропроводки и чистовой отделки. стены полностью покрашены, полы во всех комнатах, кроме спальни керамогранит. кухня оснащена современной техникой вытяжка, духовой шкаф, микроволновая печь, посудомоечная машина. кухонный гарнитур из натурального дерева. качественная сантехника и стиральная машина, в спальне установлен кондиционер. в доме два лифта пассажирский и грузовой. двор закрыт шлагбаумом, во дворе есть подземный гараж. документы один взрослый собственник, полная стоимость в договоре.продажа в связи с расширением. рассмотрим обмен на 2ком или 3 ком с доплатой в новых домах в центре уфы. звоните показ по договоренности
Похожие двухкомнатные квартиры в районе Советский





