Продается двухкомнатная квартира
Валерия Лесунова 10, район Калининский (Инорс мкр.)
17.03.2026
































Стоимость
6 990 000 ₽
99 857 рублей за м2
99 857 рублей за м2
Количество комнат
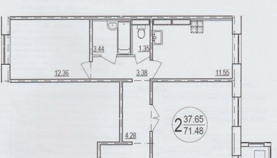
2 комн
Общая площадь
70 м²
Этаж
11 из 16
Несуществующий объект, неправильная информация? - обязательно сообщите.
Дополнительная информация:
в жк полесье комплексе 2014 года постройки продаем просторную,светлую квартиру с отличной планировкой распашонка.квартира с косметическим ремонтом заезжай и живи.плюс на этаже всего лишь 3 квартиры проживают порядочные соседи, просторный тамбур под ключ.отличная инфраструктура комплекса жк полесье во дворе своя ук, паспортный стол новая современная школа 51, детский сад, множество различных спортивных, детских площадок, остановки в 3х минутах ходьбы ферина, богородско уфимский храм, имени столетия умпо
в жк полесье комплексе 2014 года постройки продаем просторную,светлую квартиру с отличной планировкой распашонка.квартира с косметическим ремонтом заезжай и живи.плюс на этаже всего лишь 3 квартиры проживают порядочные соседи, просторный тамбур под ключ.отличная инфраструктура комплекса жк полесье во дворе своя ук, паспортный стол новая современная школа 51, детский сад, множество различных спортивных, детских площадок, остановки в 3х минутах ходьбы ферина, богородско уфимский храм, имени столетия умпо
Похожие двухкомнатные квартиры в районе Калининский





