Продается двухкомнатная квартира
12 Декабря 112, район
26.01.2026













































Стоимость
4 980 000 ₽
115 813 рублей за м2
115 813 рублей за м2
Количество комнат
2 комн
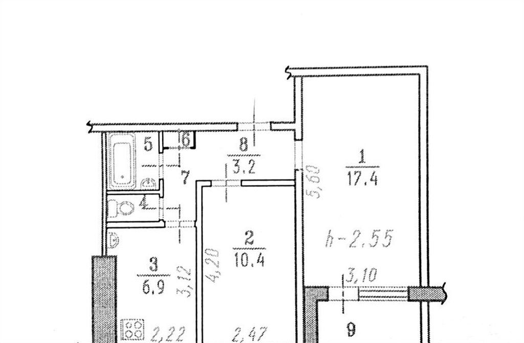
Общая площадь
43 м²
Этаж
8 из 9
Несуществующий объект, неправильная информация? - обязательно сообщите.
Дополнительная информация:
дом1983 г. п. добротный, построен по советским стандартам, высокого качества. квартира с ремонтом, в отличном состоянии. не угловая. окна пвх. комнаты изолированы. шкафкупе в коридоре. встроенная кухня с газовой варочной и электродуховкой. идеально ровные потолки. заменена проводка. пол бетон линолеум. в санузле кафель, новая сантехника, душевая кабина. счётчики на всё. лоджия застеклена в пол комбинировано. вниз тонированный стеклопакет. верхняя часть раздвижной алюминиевый профиль. пол кафель. тамбур на две квартиры. соседи спокойные, нормальные люди. сверху, снизу, сбоку пенсионеры. в подъезде чистота и порядок. двор ухожен. нет проблем с парковкой в любое время. никаких ограничений, обременений и перепланировок. два взрослых собственника. возможен обмен с нашей доплатой на 2х комн. с большей площадью в прилегающих районах.
дом1983 г. п. добротный, построен по советским стандартам, высокого качества. квартира с ремонтом, в отличном состоянии. не угловая. окна пвх. комнаты изолированы. шкафкупе в коридоре. встроенная кухня с газовой варочной и электродуховкой. идеально ровные потолки. заменена проводка. пол бетон линолеум. в санузле кафель, новая сантехника, душевая кабина. счётчики на всё. лоджия застеклена в пол комбинировано. вниз тонированный стеклопакет. верхняя часть раздвижной алюминиевый профиль. пол кафель. тамбур на две квартиры. соседи спокойные, нормальные люди. сверху, снизу, сбоку пенсионеры. в подъезде чистота и порядок. двор ухожен. нет проблем с парковкой в любое время. никаких ограничений, обременений и перепланировок. два взрослых собственника. возможен обмен с нашей доплатой на 2х комн. с большей площадью в прилегающих районах.
Похожие двухкомнатные квартиры в районе





