Продается двухкомнатная квартира
Левобережная 6/3с2, район Кировский
29.01.2026



































Стоимость
14 018 000 ₽
215 661 рублей за м2
215 661 рублей за м2
Количество комнат
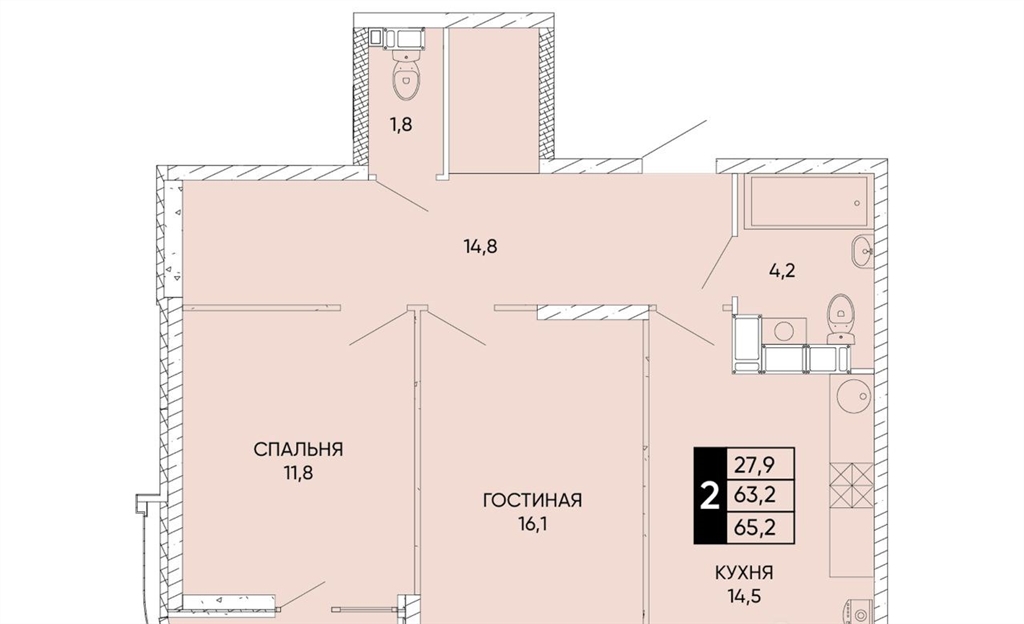
2 комн
Общая площадь
65 м²
Этаж
21 из 24
Несуществующий объект, неправильная информация? - обязательно сообщите.
Дополнительная информация:
2комнатная квартира в жк левобережье комфортный формат жизни у реки от надежного застройщика югстройинвест.если вы ищете просторную, современную и удобную 2комнатную квартиру в динамично развивающемся районе ростованадону обратите внимание на квартал левобережье.это новый проект югстройинвест, созданный для тех, кто ценит экологичность, инфраструктуру и продуманную архитектуру. площадь и планировкав продаже 2комнатная квартира раздельные комнаты большая кухнягостиная просторное место под гардероб панорамные окна, много света и приятные виды оптимальные варианты на выбор для семьи или пары, которой важно личное пространство. преимущества жизни в левобережье экологичная среда рядом набережная, прогулочные зоны, озелененные маршруты. современный квартал эстетика, благоустройство, закрытые дворы, детские площадки. комфорт внутри комплекса коворкинги, точки услуг, магазины, зоны отдыха. доступность транспорта быстрый выезд в центр, маршруты рядом, всё инфраструктурно продумано. парковочные решения подземная, наземная парковка кладовые помещения с выгодой.специальные условия на 2комнатные квартиры ипотека 5 на первые 24 месяца ипотека от 4,6 без удорожания на весь срок пв 0 ипотека без первого взноса материнский капитал можно использовать как первый взнос кладовка в подарок на выбранные квартиры семейная ипотека от 3,5 3,9 для itспециалистов ставка 6 скидка 4000 м² скидка молодоженам скидка иногородним до 5 000 м² скидка при оформлении в день обращения до 6000 м² квартиры с готовым ремонтом и техникой по единому договору от 26 000 мес фиксация цены на 60 дней при внесении предоплаты. о застройщике югстройинвест один из крупнейших и самых надежных девелоперов россии. мы более 20 лет строим масштабные жилые проекты, сдаем дома в срок, создаём кварталы с продуманной инфраструктурой и комфортом для жизни. как можно купить ипотека от банковпартнеров выгодные рассрочки маткапитал дистанционные сделки почему 2комнатная это разумный выбор отлично подходит для семьи рациональная планировка пространство для хранения высокий потенциал для сдачи в аренду семейный спрос максимально устойчивый удобный формат для долгосрочного проживания. напишите подберем 2комнатные варианты с лучшими ставками, покажем планировки и актуальные цены.жк левобережье пространство, где хочется оставаться.
2комнатная квартира в жк левобережье комфортный формат жизни у реки от надежного застройщика югстройинвест.если вы ищете просторную, современную и удобную 2комнатную квартиру в динамично развивающемся районе ростованадону обратите внимание на квартал левобережье.это новый проект югстройинвест, созданный для тех, кто ценит экологичность, инфраструктуру и продуманную архитектуру. площадь и планировкав продаже 2комнатная квартира раздельные комнаты большая кухнягостиная просторное место под гардероб панорамные окна, много света и приятные виды оптимальные варианты на выбор для семьи или пары, которой важно личное пространство. преимущества жизни в левобережье экологичная среда рядом набережная, прогулочные зоны, озелененные маршруты. современный квартал эстетика, благоустройство, закрытые дворы, детские площадки. комфорт внутри комплекса коворкинги, точки услуг, магазины, зоны отдыха. доступность транспорта быстрый выезд в центр, маршруты рядом, всё инфраструктурно продумано. парковочные решения подземная, наземная парковка кладовые помещения с выгодой.специальные условия на 2комнатные квартиры ипотека 5 на первые 24 месяца ипотека от 4,6 без удорожания на весь срок пв 0 ипотека без первого взноса материнский капитал можно использовать как первый взнос кладовка в подарок на выбранные квартиры семейная ипотека от 3,5 3,9 для itспециалистов ставка 6 скидка 4000 м² скидка молодоженам скидка иногородним до 5 000 м² скидка при оформлении в день обращения до 6000 м² квартиры с готовым ремонтом и техникой по единому договору от 26 000 мес фиксация цены на 60 дней при внесении предоплаты. о застройщике югстройинвест один из крупнейших и самых надежных девелоперов россии. мы более 20 лет строим масштабные жилые проекты, сдаем дома в срок, создаём кварталы с продуманной инфраструктурой и комфортом для жизни. как можно купить ипотека от банковпартнеров выгодные рассрочки маткапитал дистанционные сделки почему 2комнатная это разумный выбор отлично подходит для семьи рациональная планировка пространство для хранения высокий потенциал для сдачи в аренду семейный спрос максимально устойчивый удобный формат для долгосрочного проживания. напишите подберем 2комнатные варианты с лучшими ставками, покажем планировки и актуальные цены.жк левобережье пространство, где хочется оставаться.
Похожие двухкомнатные квартиры в районе Кировский





